Roomy modern family home with extension potential and energy-saving solar storage.
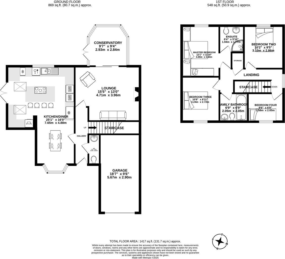
Newly renovated four-bedroom detached family home
This four-bedroom detached house on Simmons Avenue is a newly renovated family home set on a large, private plot in a comfortable suburban pocket of Walton‑le‑Dale. The property benefits from a bright, contemporary kitchen/diner with integrated appliances and skylights, a spacious lounge opening to a conservatory, and a generous wrap‑around garden suited to family life and outdoor entertaining.
Practical running costs are reduced by 11 solar panels with battery storage, and the house includes private driveway parking plus an attached single garage. Planning permission has already been granted for a small front extension and garage conversion to create a five-bedroom layout — an immediate option for growing families or those needing extra space.
The home is presented in good decorative order following recent renovation, so buyers can move in without major works. Notable items: the property is awaiting an official EPC rating, and council tax is above average for the area, factors to consider when budgeting ongoing costs.
Set on a quiet cul‑de‑sac close to well‑regarded primary and secondary schools, local parks and retail amenities, this house suits families seeking roomy accommodation, strong transport links and scope to adapt the layout. Early viewing is recommended to fully appreciate the size and extension potential.
4 bedroom detached house for sale in Valley View, Walton-Le-Dale, Preston, PR5 — £574,950 • 4 bed • 3 bath • 2473 ft²
4 bedroom detached house for sale in Carrwood Way, Walton Le Dale, PR5 — £419,995 • 4 bed • 2 bath • 1118 ft²
4 bedroom detached house for sale in Pear Tree Crescent, Walton-Le-Dale, Preston, PR5 — £325,000 • 4 bed • 3 bath • 1389 ft²
3 bedroom detached house for sale in Fareham Close, Walton-Le-Dale, Preston, PR5 — £279,950 • 3 bed • 2 bath • 1002 ft²
3 bedroom detached house for sale in Somersby Close, Walton-Le-Dale, Preston, PR5 — £255,000 • 3 bed • 1 bath • 914 ft²
4 bedroom detached house for sale in Springwood Close, Walton-le-Dale, Preston, Lancashire, PR5 — £330,000 • 4 bed • 2 bath • 1450 ft²


































































































