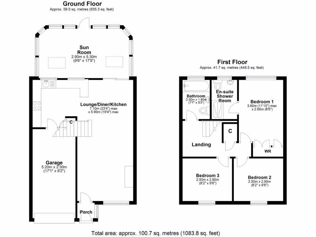
**Standout Features:**
- Three spacious double bedrooms with fitted wardrobes
- Inviting lounge/diner with an electric fireplace
- Bright sunroom offering versatile space
- Enclosed rear garden ideal for families
- Block-paved driveway with garage access
- Affordably rated Council Tax (Band C)
**Property Summary:**
Discover this charming three-bedroom semi-detached home, perfect for families and first-time buyers alike, situated in a peaceful yet accessible estate in DH3 4NL. Offering approximately 1,083 sqft of well-maintained living space, this property features a relaxing lounge/diner that seamlessly flows into a stylish kitchen, equipped with modern appliances including an integrated dishwasher and gas hob.
Retreat to the sunlit garden room that provides a myriad of possibilities—turn it into a playroom, home office, or serene reading nook. The primary suite comes with an en suite shower, while two additional double bedrooms and a family bathroom ensure ample space for all. The secure enclosed garden and driveway with garage make this home both family-friendly and practical.
Although the home is well-loved, minor updates could enhance some areas, allowing for personalization. With local schools rated 'Good' and a variety of amenities nearby, this residence balances comfort and convenience. Don’t miss out on viewing this delightful home—opportunities like this are often in high demand!
3 bedroom semi-detached house for sale in Strathmore, Great Lumley, Chester Le Street, Durham, DH3 — £175,000 • 3 bed • 1 bath • 817 ft²
3 bedroom semi-detached house for sale in Dovecote Drive, Pelton Fell, Chester Le Street, Durham, DH2 — £180,000 • 3 bed • 2 bath • 926 ft²
3 bedroom semi-detached house for sale in Winchester Close, Great Lumley, Chester Le Street, Durham, DH3 — £200,000 • 3 bed • 1 bath • 861 ft²
3 bedroom semi-detached house for sale in Elmway, Chester Le Street, Durham, DH2 — £225,000 • 3 bed • 1 bath • 1130 ft²
3 bedroom semi-detached house for sale in Hilda Park, Chester Le Street, Durham, DH2 — £200,000 • 3 bed • 1 bath • 1158 ft²
3 bedroom detached house for sale in Heathfield, Chester Le Street, Durham, DH2 — £230,000 • 3 bed • 2 bath • 840 ft²






















































