Lower upfront cost retirement option with parking and strong local amenities.
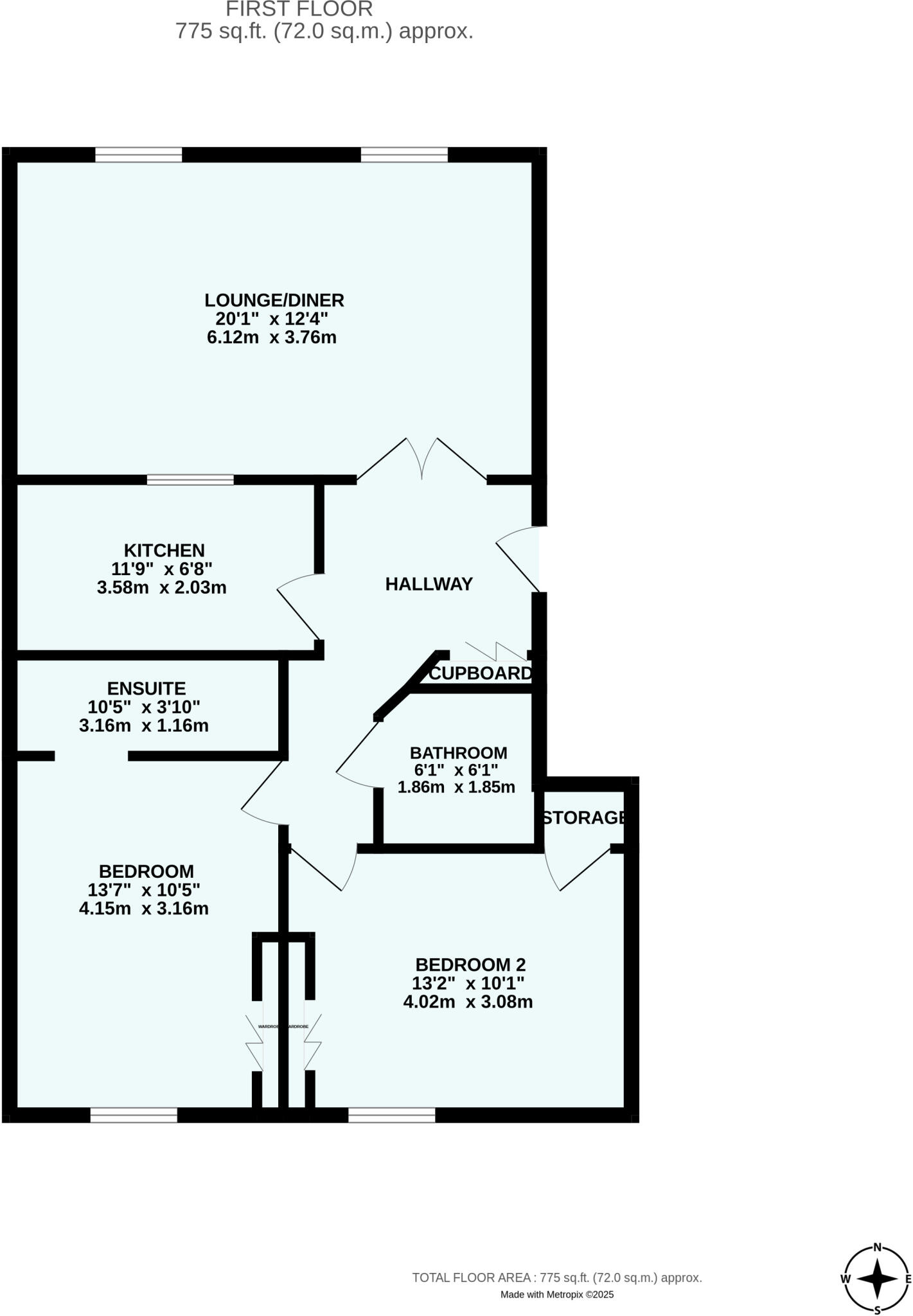
- Two bedrooms and one bathroom, approximately 775 sq ft
- Lifetime Lease example price £154,000 for eligible over-60s
- Full market price listed at £230,000
- Home for Life scheme only available to buyers aged 60 or over
- Living room decorative finishes dated; would benefit from modernisation
- Tenure/lease details not confirmed — solicitor verification essential
- On-site parking, excellent mobile signal and fast broadband
- Located in a very affluent area with nearby amenities and bus links
Set within a modern purpose-built block in a very affluent Plymouth suburb, this two-bedroom apartment offers an accessible retirement option with good digital connectivity and on-site parking. The living spaces are generous for the size (approximately 775 sq ft) and provide comfortable proportions for downsizing, with natural light and traditional features in the sitting room.
This property is being offered with a Home for Life Lifetime Lease example price of £154,000 (guide price based on an average saving). The full market price is listed at £230,000; the actual Lifetime Lease price depends on age, personal circumstances and any share you choose to purchase (up to 50%). The Home for Life plan is available only to buyers aged 60 and over — non-eligible buyers would pursue the full market sale.
The apartment is generally well maintained but the living room shows dated decorative finishes and would benefit from modernisation to fully reflect buyers’ tastes. Important practical points: tenure/lease details are not confirmed and should be checked by your solicitor. Fixtures, fittings and services are sold as seen and should be independently verified.
Local amenities are close by, including shops, healthcare, leisure facilities and bus routes, making daily life convenient without needing a car. Overall, this is a sensible, lower-upfront-cost retirement option for over-60s seeking roomy accommodation in a well-served area — provided buyers check lease details and consider modest updating.
2 bedroom apartment for sale in Citadel Road, Plymouth, Devon, PL1 — £107,250 • 2 bed • 1 bath • 761 ft²
1 bedroom apartment for sale in Lancaster Gardens, Plymouth, Devon, PL5 — £60,250 • 1 bed • 1 bath • 513 ft²
2 bedroom apartment for sale in Evelyn Street, Plymouth, Devon, PL5 — £73,750 • 2 bed • 1 bath • 512 ft²
3 bedroom semi-detached house for sale in West Down Road, Plymouth, Devon, PL2 — £217,750 • 3 bed • 1 bath • 1248 ft²
2 bedroom terraced house for sale in Craigmore Avenue, Plymouth, PL2 — £114,000 • 2 bed • 1 bath • 763 ft²
2 bedroom terraced house for sale in Beatrice Avenue, Keyham, Plymouth, Devon, PL2 — £107,250 • 2 bed • 1 bath • 981 ft²










































