OX28 5FE - 4 bedroom detached house for sale in Idbury Close, Witney,…

View on Property Piper

4 bedroom detached house for sale in Idbury Close, Witney, OX28

Summary - 41 IDBURY CLOSE WITNEY OX28 5FE

4 bed 3 bath Detached

**Property Highlights:**
- Four bedrooms, including a master ensuite
- Modern kitchen with stainless steel appliances
- Family bathroom and additional study/second reception
- Detached home with garage and driveway parking
- Sold with no onward chain for hassle-free transition
- Located within a low-crime, affluent suburb

This well-presented four-bedroom detached home is nestled in the desirable Deer Park development, offering a perfect blend of comfort and modernity. With a master ensuite, a contemporary kitchen equipped with stainless steel appliances, and a spacious family bathroom, this property is ideal for families seeking a move-in-ready home. The additional study or second reception room provides flexibility for home office space or entertainment, while the garden and garage add significant appeal for outdoor enthusiasts and families alike.

Positioned in a very low-crime area with excellent local amenities and strong school options—many rated 'Good' by Ofsted—this home is perfect for families looking for a secure and welcoming neighborhood. The property is chain-free, allowing for a quick and smooth purchase process.

Please note, the overall size is modest at 645 sq ft, which may not suit those seeking expansive living spaces. Additionally, while the double glazing is noted, the install date is unknown, meaning future considerations around energy efficiency should be kept in mind. However, the potential for personal touches and minor updates make this an exciting opportunity for anyone wanting to establish their home in a comfortable suburb. Don’t miss your chance on this ideal family home—properties like this don’t stay on the market for long!

Property Details

Image Descriptions

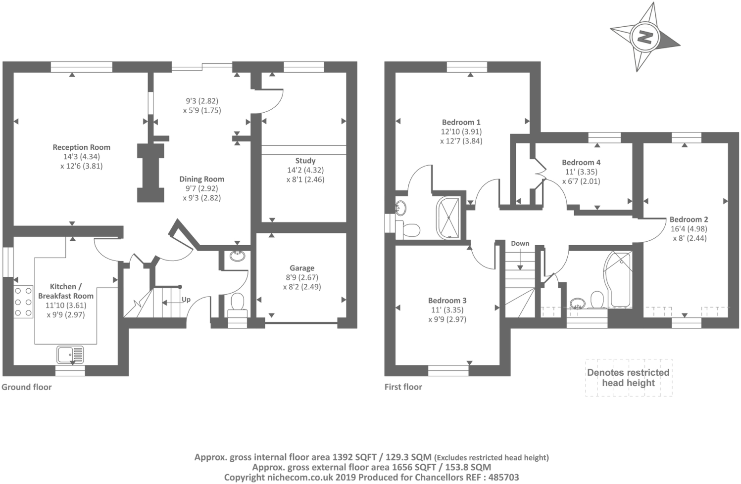
Floorplan Description

Rooms

Textual Property Features

Detected Visual Features

EPC Details

Nearby Schools

Nearest Bars And Restaurants

,,,,}

Nearest General Shops

,,}

Nearest Grocery shops

,,}

Nearest Supermarkets

,,}

Nearest Religious buildings

,,}

Nearest Medical buildings

,,,}

Nearest Leisure Facilities

,,,,}

Nearest Tourist attractions

,,}

Nearest Train stations

,,,,}

Nearest Bus stations and stops

,,,,}

Nearest Hotels

,,}

Tags

Local Market Stats

AirBnB Data

Similar Properties

Meta

High Res Images

Compatible Images

Low res Images

Thumbnails

Raw Images

High Res Floorplan Images

Compatible Floorplan Images

Low res Floorplan Images

FloorplanImages Thumbnail

Raw Floorplan Images