SR6 7JX - 4 bed whitburn village luxury home in Redhill, SR6 7JX

View on Property Piper

4 bedroom detached house for sale in Redhill, Sunderland, SR6

Summary - 5 REDHILL SUNDERLAND SR6 7JX

4 bed 2 bath Detached

Spacious family layout with large gardens and extensive off-street parking.
South-facing wraparound terrace with integrated bar and glass balustrades
Set on a prominent plot in sought-after Whitburn village, this substantial four-bedroom detached house offers generous family accommodation across three floors. The property’s south-facing wraparound terrace, glazed balustrades and integrated bar create an exceptional outdoor entertaining space with direct sightlines from the open-plan kitchen and living areas.

Finished to a high standard with shaker-style kitchen, integrated appliances, statement bathroom and high-quality fitted furniture throughout, the home balances contemporary comfort with mid-century character. Energy performance is good (EPC C) and the plot includes extensive parking for several cars plus large, mature gardens.

Practical advantages include a large double garage with storage racks (clear conversion potential for annexe, gym or cinema), a boot room, utility and study space on the ground floor and a partly boarded loft with light and power. The layout works well for growing or multi-generational families and is conveniently placed for local schools, shops and nearby beaches.

Notable practical points: broadband speeds are reported slow, council tax is in band F (expensive) and services/appliances are sold as untested — any buyer should verify service conditions and required permissions for garage conversion. Overall this is a rare, spacious family home offering strong lifestyle appeal and scope to tailor parts of the property to personal requirements.

Property Details

Image Descriptions

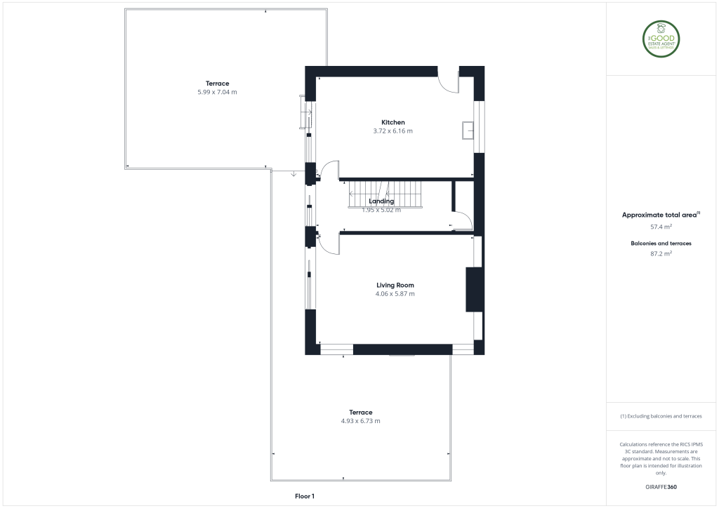
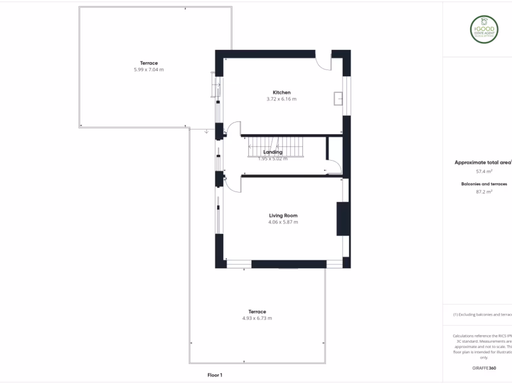
Floorplan Description

Rooms

Textual Property Features

Target Audience

AI Tags

Detected Visual Features

Nearby Schools

Nearest Bars And Restaurants

,,,,}

Nearest General Shops

,,}

Nearest Grocery shops

,,}

Nearest Supermarkets

,,}

Nearest Religious buildings

,,}

Nearest Medical buildings

,,,}

Nearest Airports

,}

Nearest Leisure Facilities

,,,,}

Nearest Tourist attractions

,,}

Nearest Train stations

,,,,}

Nearest Bus stations and stops

,,,,}

Nearest Hotels

,,}

Tags

Local Market Stats

Similar Properties

Meta

High Res Images

Compatible Images

Low res Images

Thumbnails

Raw Images

High Res Floorplan Images

Compatible Floorplan Images

Low res Floorplan Images

FloorplanImages Thumbnail

Raw Floorplan Images