**Standout Features:**
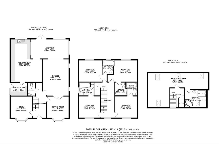
- Prestigious three-storey detached home opposite award-winning Hollycroft Park
- Five spacious double bedrooms, each with ensuite bathrooms
- Luxurious top-floor master suite with spa-style bathroom and dressing area
- Multiple reception rooms including study, dining room, and living room
- Stylish Shaker-style breakfast kitchen with granite worktops
- Detached double garage and summerhouse
- Landscaped rear garden ideal for entertaining
- Underfloor heating and air recirculation system throughout
Nestled in a prime location along the sought-after Hollycroft in Hinckley, this elegant five-bedroom detached home boasts almost 2,400 sq. ft. of thoughtfully-designed living space perfect for families and professionals alike. Spacious reception rooms gather natural light through bay and French windows, creating an inviting atmosphere for both relaxation and entertaining. The heart of the home features a stylish breakfast kitchen equipped with high-end appliances, seamlessly connecting to formal dining and living areas.
Ascend to the top floor, where the master suite elevates comfort with vaulted ceilings, exposed beams, and a private spa-like ensuite, ensuring a luxurious retreat at the end of each day. Outside, enjoy summer gatherings in a beautifully landscaped garden, complete with a charming summerhouse. Additional highlights include a detached double garage and ample off-road parking, providing convenience and privacy.
While the property is generally well-maintained, potential buyers should note that local amenities, schools, and transport links are conveniently located within walking distance, further enhancing its appeal. This exquisite family residence offers a rare blend of elegance and practicality in one of Hinckley's most prestigious neighborhoods, making it an exceptional opportunity—don't miss your chance to make it yours!



































































































































































