**Standout Features:**
- Charming Grade II listed detached cottage with historical character
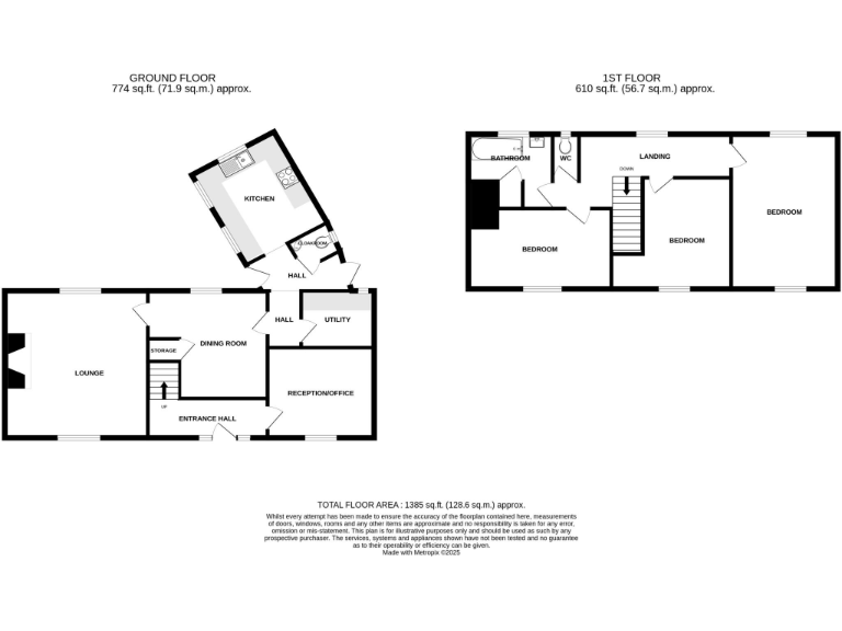
- Spacious two-floor layout with three bedrooms and one bathroom
- Cosy dual-aspect lounge, dining room, and separate reception room
- Modern fitted kitchen with integrated oven, gas hob, and dishwasher
- Large enclosed garden with mature shrubs and stone walling
- Convenient off-road parking
- Walking distance to Chard town amenities
**Concerns:**
- Listed status may complicate renovations
- Built before 1900 with no insulation (assumed)
- High crime rates in the area
- EPC Rating: E, indicating potential energy efficiency improvements needed
**Summary Description:**
Step into history with this enchanting Grade II listed detached cottage, perfectly blending character with modern comfort. This beautifully presented home offers a generous layout across two floors, featuring a cosy dual-aspect lounge, an inviting dining area, and a separate reception room, making it ideal for family gatherings or quiet evenings. The fitted kitchen stands out with its integrated oven and gas hob, while a utility room enhances practicality.
Upstairs, you'll find a spacious dual-aspect main bedroom and two additional well-sized bedrooms, along with a family bathroom, providing ample space for families or guests. The charming outdoor area is framed by traditional stone walling, featuring a large lawn and established shrubs—a serene backdrop for entertaining or relaxation. Off-road parking adds to the convenience.
Located just off Chard Town center, this cottage is close to essential amenities and reputable schools. While the listed status could present renovation challenges, the home’s endearing features and prime location offer a unique opportunity for those looking to embrace comfort and character. Don't miss out on this captivating property; explore the potential and make it your own!
3 bedroom terraced house for sale in Crimchard, Chard, Somerset, TA20 — £225,000 • 3 bed • 1 bath • 963 ft²
2 bedroom end of terrace house for sale in Crimchard, Chard, Somerset, TA20 — £170,000 • 2 bed • 1 bath • 692 ft²
2 bedroom terraced house for sale in Fore Street, Chard, TA20 — £140,000 • 2 bed • 1 bath • 819 ft²
2 bedroom detached house for sale in High Street, Chard, Somerset, TA20 — £180,000 • 2 bed • 1 bath • 725 ft²
2 bedroom terraced house for sale in Ostlers Yard, Fore Street, Chard, TA20 — £155,000 • 2 bed • 1 bath • 958 ft²
1 bedroom cottage for sale in Bowditch Row, Crewkerne, TA18 — £140,000 • 1 bed • 1 bath • 394 ft²










































































































