Affordable three-bed home near schools and transport links.
Newly renovated throughout, move-in ready condition
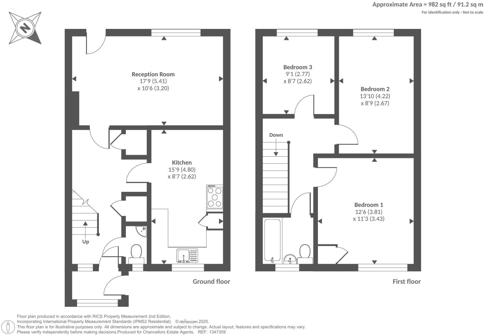
This newly renovated three-bedroom mid-terraced house in Brighton Hill offers straightforward, move-in-ready living for first-time buyers or investors. The layout includes a lounge/diner, kitchen/diner, ground-floor cloakroom and a family bathroom upstairs — practical spaces for daily life. Double glazing, a mains gas boiler with radiators, and recent decoration reduce immediate maintenance needs.
Outside, the low-maintenance rear garden and outbuilding give private outdoor space without heavy upkeep. The property sits in a quiet cul-de-sac with communal off-street parking and easy access to local shops, schools rated Good, bus routes and the M3 — useful for commuting and family routines. Broadband speeds are fast and mobile signal excellent, supporting home working or letting appeal.
Buyers should note material local-area considerations: the neighbourhood scores as deprived with higher-than-average crime levels, and the plot is small. The home has one family bathroom and communal parking rather than a private driveway, which may influence household convenience. Overall, the house presents a practical, affordable freehold opportunity with renovation-complete interiors but some area-related trade-offs.
2 bedroom end of terrace house for sale in Gershwin Road, Basingstoke, RG22 — £280,000 • 2 bed • 1 bath • 620 ft²
2 bedroom terraced house for sale in Bernstein Road, BASINGSTOKE, RG22 — £300,000 • 2 bed • 1 bath • 655 ft²
3 bedroom terraced house for sale in Beecham Berry, Basingstoke, RG22 — £335,000 • 3 bed • 1 bath • 573 ft²
3 bedroom semi-detached house for sale in Mathias Walk, Brighton Hill, Basingstoke, RG22 — £325,000 • 3 bed • 1 bath • 681 ft²
2 bedroom end of terrace house for sale in Lennon Way, BASINGSTOKE, RG22 — £290,000 • 2 bed • 1 bath • 520 ft²
3 bedroom terraced house for sale in Wordsworth Close, Basingstoke, Hampshire, RG24 — £290,000 • 3 bed • 1 bath • 947 ft²






















































































