Extended kitchen, garage and close to train station — ideal for growing families.
No onward chain — offered freehold
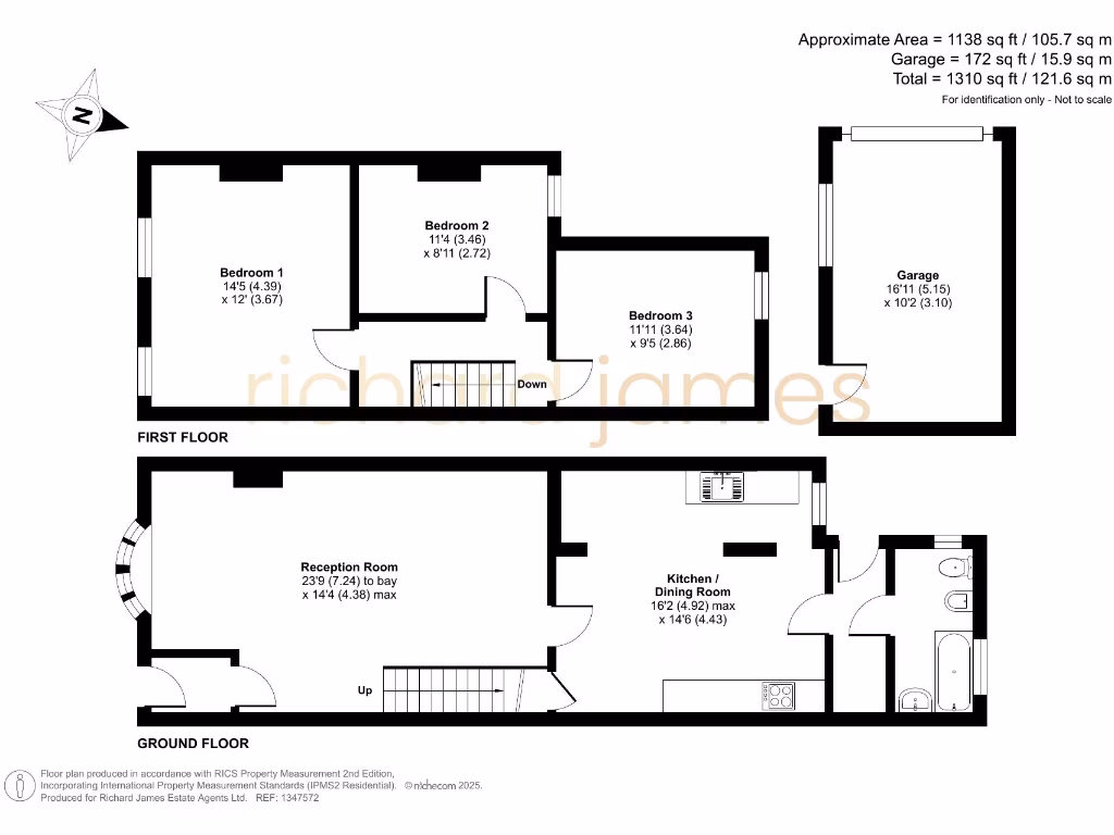
No onward chain and offered freehold, this three-bedroom mid-terrace in Gorse Hill presents roomy family accommodation close to Swindon train station. The house benefits from an extended kitchen/dining room, a bay-fronted lounge/dining space and three generous bedrooms across two floors — practical proportions for family living or first-time buyers stepping up.
Externally there is a low-maintenance rear garden and a detached garage accessed from the rear lane, providing secure parking or storage in an area where parking can be at a premium. Broadband and mobile signal are strong, and several Good-rated primary and secondary schools lie within easy reach.
The property does need modernisation throughout — dated kitchen fittings, traditional cabinetry, and general cosmetic updating are evident. The wider area is an inner-city urban mix with higher crime levels and local deprivation factors to consider; buyers seeking quieter suburban streets may find this location too central. Flooding risk is low.
Priced with a guide range of £245,000–£260,000, this home will suit buyers who value space, transport links, and renovation potential. It offers clear scope to add value through updating and cosmetic improvement while providing immediate practical benefits like parking and generous room sizes.
3 bedroom terraced house for sale in Kitchener Street, Gorse Hill, Swindon, SN2 — £240,000 • 3 bed • 2 bath • 1006 ft²
3 bedroom terraced house for sale in Edinburgh Street, Swindon, Wiltshire, SN2 — £260,000 • 3 bed • 1 bath • 1167 ft²
3 bedroom terraced house for sale in Beatrice Street, Gorse Hill, Swindon, SN2 — £174,250 • 3 bed • 1 bath • 961 ft²
3 bedroom terraced house for sale in Tydeman Street, Gorse Hill, Swindon, SN2 — £250,000 • 3 bed • 1 bath • 915 ft²
3 bedroom terraced house for sale in Cricklade Road, Gorse Hill, Swindon, SN2 — £255,000 • 3 bed • 1 bath • 962 ft²
3 bedroom terraced house for sale in Cricklade Road, Gorse Hill, Swindon, SN2 — £250,000 • 3 bed • 1 bath • 795 ft²














































































