Single-level living with large south garden and ample parking.
Chain-free semi-detached bungalow on a corner plot
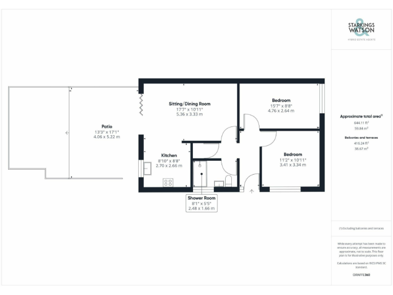
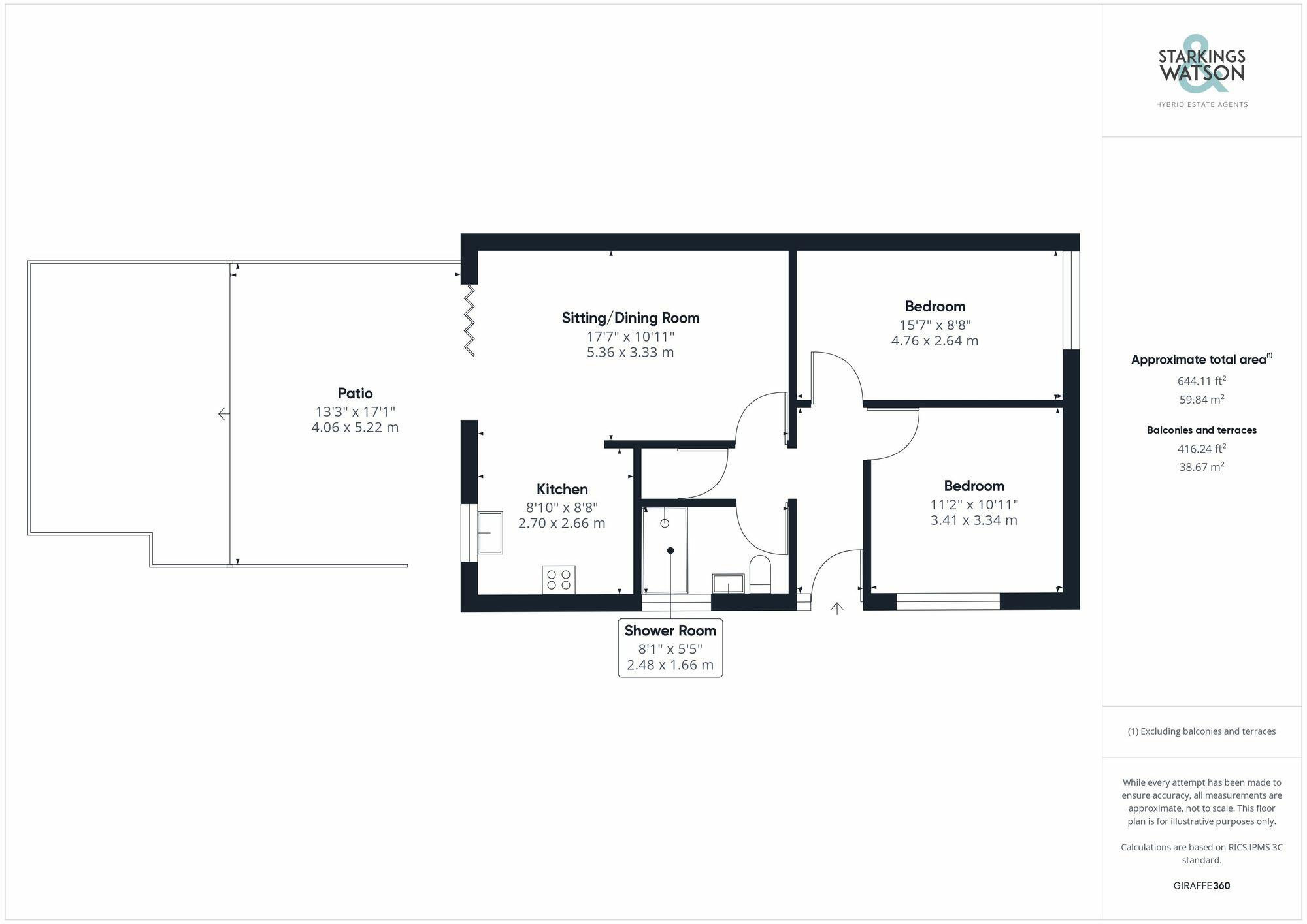
A fully modernised semi-detached bungalow on a generous corner plot, ideal for downsizers seeking single-level living close to Brundall amenities. The open-plan living space has engineered oak flooring, bi-fold doors onto a large south-facing garden, and a contemporary kitchen with integrated appliances and breakfast bar. Two double bedrooms flank a newly installed shower room, offering comfortable, low-maintenance accommodation.
Significant recent works include extensive re-plumbing, re-plastering, insulation, and what is described as new gas-fired central heating, together with updated electrics and double glazing (unknown install date). The large shingle driveway provides ample off-street parking and the landscaped rear garden features a patio and raised deck for outdoor living.
Practical considerations: the property is compact at about 644 sq ft and sits in EPC band E, so buyers should expect modest energy running costs unless further improvements are made. It is offered freehold and chain-free, in a quiet, low-crime area with fast broadband, good mobile signal, and local services nearby — a straightforward move for someone looking to downsize without major renovation.
Nearby Brundall schools are rated Good and local shops, buses and pubs are within easy reach. The bungalow’s combination of modern finish, outdoor space and parking makes it a strong choice for buyers wanting immediate, single-floor living with potential to personalise energy efficiency over time.
3 bedroom semi-detached bungalow for sale in St. Laurence Avenue, Brundall, Norwich, NR13 — £235,000 • 3 bed • 1 bath • 723 ft²
3 bedroom detached bungalow for sale in Skedge Way, Blofield Heath, Norwich, NR13 — £415,000 • 3 bed • 2 bath • 1129 ft²
2 bedroom semi-detached bungalow for sale in Springdale Crescent, NORWICH, NR13 — £255,000 • 2 bed • 1 bath • 820 ft²
2 bedroom detached bungalow for sale in St. Laurence Avenue, Brundall, Norwich, NR13 — £270,000 • 2 bed • 1 bath • 667 ft²
2 bedroom semi-detached bungalow for sale in Lower Globe Lane, Blofield, Norwich, NR13 — £265,000 • 2 bed • 1 bath • 1010 ft²
2 bedroom semi-detached bungalow for sale in The Boltons, Hales, Norwich, NR14 — £210,000 • 2 bed • 1 bath • 594 ft²






































































































































































