Large 120ft enclosed garden and modernised interior ideal for families.
Chain free and presented to show-home standard
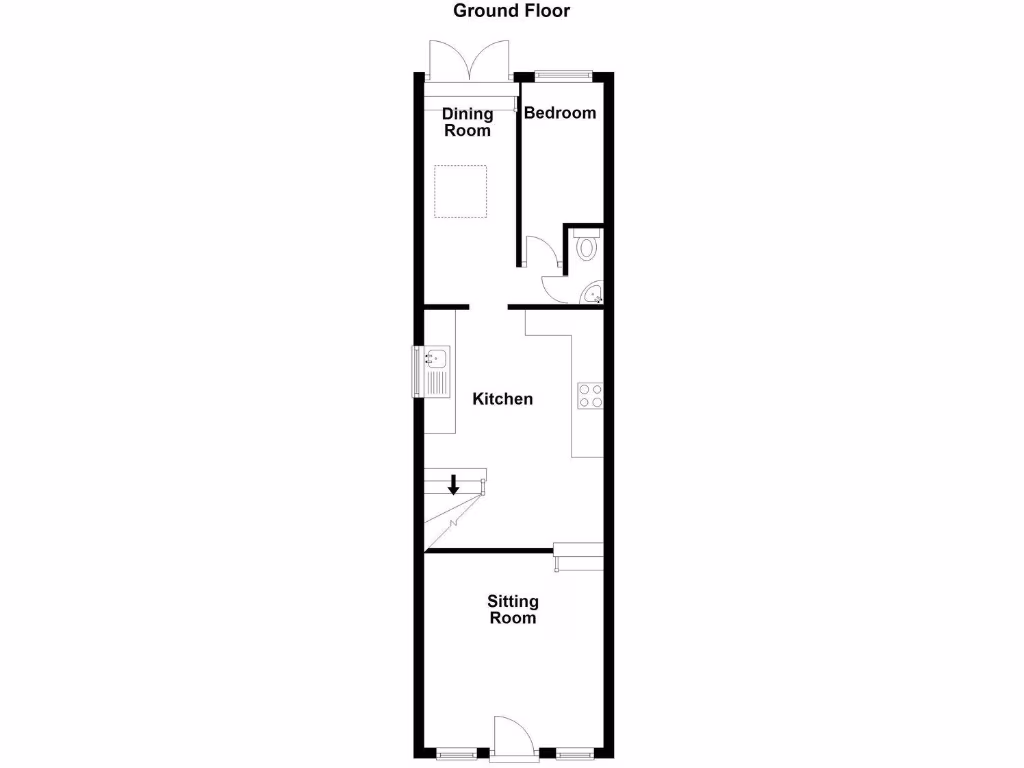
A spacious-feeling three-bedroom Victorian end terrace presented to show-home standard and offered chain free. The house blends period character with modern fittings: a high-quality kitchen, a fitted bathroom with mains-fed shower, and laminate flooring throughout the ground floor. The layout suits a small family or those wanting one-floor sleeping with a ground-floor bedroom and WC.
The standout outside feature is the long, enclosed rear garden stretching to approximately 120ft, with veggie plots, raised beds, lawn and patio — excellent for family gardening, entertaining or potential outbuilding space. The location is convenient for village amenities, good primary schools, and road links to Newton Abbot and Exeter; broadband and mobile signals are reported strong.
Important negatives to note: overall internal size is small (about 759 sq ft) and there is only one bathroom. Tenure is not specified and should be confirmed. Image notes also flagged areas described as needing work (damp, roof and general upkeep) in some listings — buyers should arrange a survey to check for any structural, damp or roof issues before committing.
This property suits buyers seeking a characterful, low-maintenance family home with a large garden and clear scope to personalise, provided they confirm tenure and inspect for any repair needs.
3 bedroom detached house for sale in The Gables, Fore Street, Kingskerswell, Newton Abbot, TQ12 5HU, TQ12 — £345,000 • 3 bed • 1 bath • 1464 ft²
3 bedroom terraced house for sale in Princess Road, Kingskerswell, TQ12 — £210,000 • 3 bed • 1 bath • 684 ft²
3 bedroom semi-detached house for sale in Bushmead Avenue, Kingskerswell, TQ12 — £320,000 • 3 bed • 1 bath • 1001 ft²
3 bedroom semi-detached house for sale in Vale Road, Newton Abbot, TQ12 — £250,000 • 3 bed • 1 bath • 1044 ft²
2 bedroom semi-detached house for sale in Westhill Terrace, Newton Abbot, TQ12 — £250,000 • 2 bed • 1 bath • 840 ft²
3 bedroom semi-detached house for sale in Broadgate Road, Kingskerswell, Newton Abbot, Devon, TQ12 — £360,000 • 3 bed • 2 bath • 1178 ft²


















































































































































































