Affordable three-bed semi with driveway, garden and strong transport links.
Three bedrooms with built-in wardrobe to master
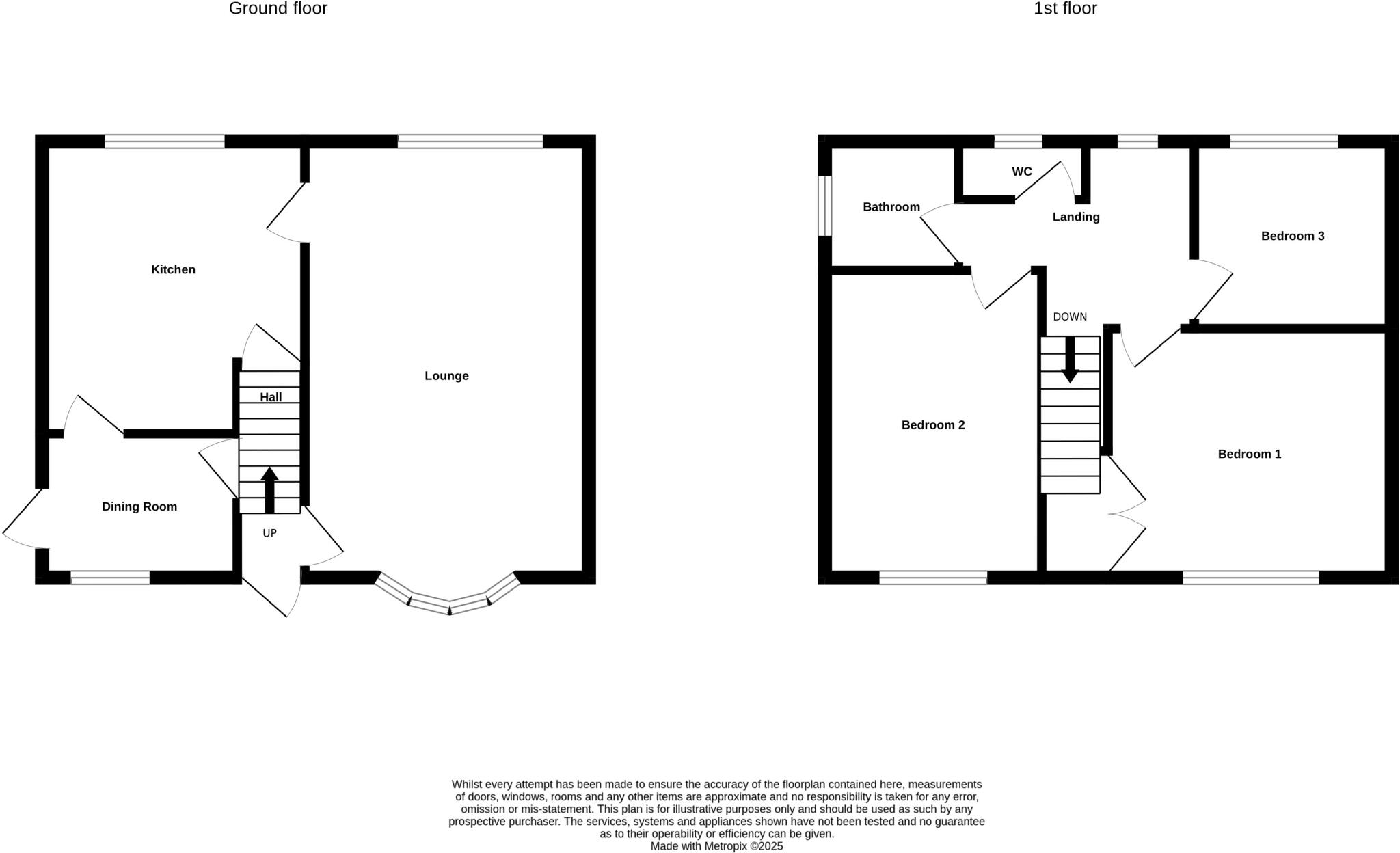
A compact three-bedroom semi-detached in WS5 offering off-street parking, a good-sized rear garden and a generous lounge with bay window. At 481 sq ft the house is suited to first-time buyers or young families seeking an affordable starter home with immediate access to local schools and transport links.
The ground floor provides a modern lounge, fitted kitchen, dining room and side access to the low-maintenance garden — useful for entertaining. Upstairs are three well-proportioned bedrooms, a separate WC and a family bathroom with shower-over-bath. Broadband speeds are fast and mobile signal is excellent.
This is a freehold property with a decent plot and a large driveway. The neighbourhood is in a more deprived area with above-average crime levels; buyers should factor local area context into their decision. The property’s overall size is small, and there is a single bathroom, which may be a consideration for growing families.
Nearby amenities include shops, cafes, and multiple schools rated Good or Outstanding, with motorway links close by. The house presents a practical, affordable opportunity for buyers looking to personalise a compact family home in a convenient location.
3 bedroom semi-detached house for sale in Almond Avenue, Walsall, WS5 — £280,000 • 3 bed • 1 bath • 926 ft²
3 bedroom terraced house for sale in Sarah Gardens, Walsall, WS5 — £220,000 • 3 bed • 1 bath • 1002 ft²
3 bedroom end of terrace house for sale in Severn Road, Walsall, WS3 — £195,000 • 3 bed • 1 bath • 363 ft²
3 bedroom semi-detached house for sale in Wagtail Road, Walsall, WS3 — £220,000 • 3 bed • 1 bath
3 bedroom semi-detached house for sale in Biddlestone Grove, Walsall, WS5 — £240,000 • 3 bed • 1 bath • 732 ft²
3 bedroom semi-detached house for sale in Ladbury Road, Walsall, WS5 — £230,000 • 3 bed • 1 bath


























































