**Standout Features:**
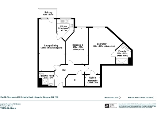
- Luxury retirement apartment exclusive to individuals aged 60 and over
- Two spacious bedrooms and two bathrooms
- Immaculate open-plan lounge/dining room with a south-facing private balcony
- Modern build completed in 2020 with lift access
- Managed community with 24-hour emergency care and on-site house manager
- Private off-street parking available (£250 per space)
- Excellent mobile signal and fast broadband speeds
**Potential Concerns:**
- Located in a very deprived area
- Above-average council tax rate (Band E)
Discover this exclusive luxury retirement apartment in Milngavie’s sought-after Riverwood development, designed for those aged 60 and above. This stunning two-bedroom home, built in 2020, offers an inviting open-plan lounge/dining area that seamlessly connects to a sunny private balcony, perfect for enjoying your morning coffee or evening relaxation.
Situated on the top floor, this apartment boasts fantastic south/west views across the district and includes an integrated kitchen with modern Bosch appliances, as well as ample storage throughout. The secured community features a well-appointed communal lounge and guest suite, giving residents a chance to socialize, while a dedicated house manager ensures peace of mind. With essential amenities just a short walk away and excellent transport links to Glasgow City Centre, this property truly embodies a comfortable and convenient lifestyle for discerning retirees.
While the property is positioned in a deprived area, its luxurious offering and vibrant community make it a must-see. Don’t miss out on this rare chance to secure your ideal retirement space—schedule a viewing today!
2 bedroom flat for sale in 101 Craigdhu Road, Milngavie, G62 7AD, G62 — £275,000 • 2 bed • 2 bath • 882 ft²
1 bedroom apartment for sale in Riverwood, Craigdhu Road, Milngavie, Glasgow, G62 — £215,000 • 1 bed • 1 bath • 604 ft²
1 bedroom flat for sale in Craigdhu Road, Milngavie, Glasgow, East Dunbartonshire, G62 — £205,000 • 1 bed • 1 bath • 509 ft²
2 bedroom apartment for sale in Riverwood, 101 Craigdhu Road, Milngavie, G62 — £310,000 • 2 bed • 2 bath • 875 ft²
2 bedroom flat for sale in Kirkintilloch Road, Bishopbriggs, Glasgow, East Dunbartonshire, G64 — £215,000 • 2 bed • 2 bath
1 bedroom apartment for sale in Main Street, Milngavie, G62 — £135,000 • 1 bed • 1 bath • 459 ft²














































































































