Compact, connected two-bed ideal for first-time buyers or buy-to-let investors.
Two double bedrooms with fitted wardrobes
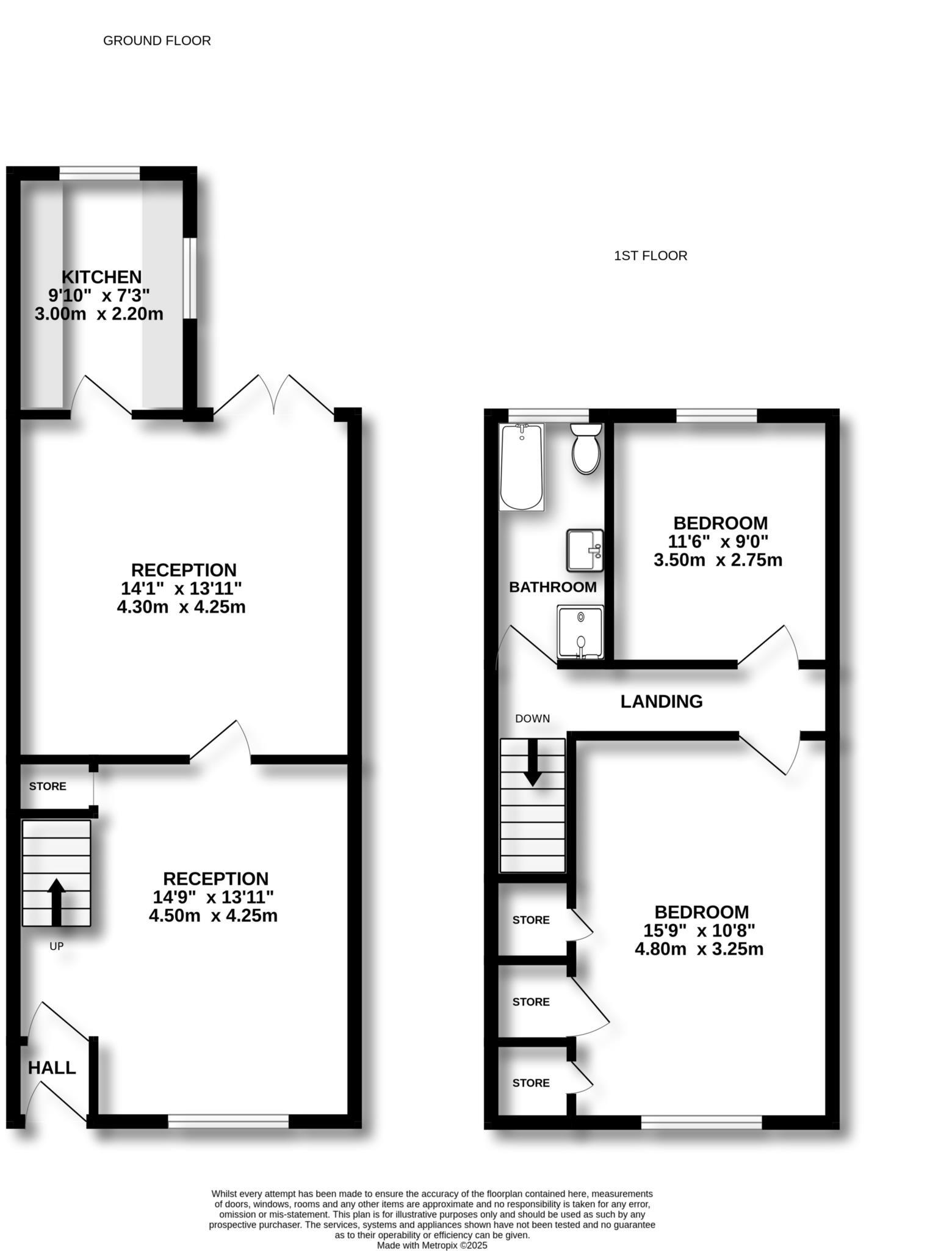
This deceptively spacious mid-terrace home offers a practical layout ideal for first-time buyers or landlords. The property has two good-size bedrooms, two separate reception rooms and a modern kitchen with integrated appliances, all arranged across a conventional multi-storey plan. Its enclosed rear yard provides private outdoor space and gated rear access.
Built form and fittings are straightforward: UPVC double glazing, gas central heating with boiler and radiators, and an average overall size of about 872 sq ft. Broadband and mobile signal are strong, and local crime levels are very low, making this a sensible purchase for buyers prioritising connectivity and day-to-day convenience.
Notable positives include proximity to several Good-rated primary and secondary schools, easy access to public transport and nearby motorway links, and relatively low council tax. The building presents period-style external character with generally small rooms and standard ceiling heights, which will suit buyers who appreciate compact, manageable living space.
Buyers should note the wider area is classified as deprived with local “hampered neighbourhoods” characteristics; social renting and young-family demographics are common. While the interior is ready to occupy, investors should check rental prospects locally and first-time buyers should factor potential updates and personalisation into budgeting. Interested parties must verify the condition of services and fittings independently.
2 bedroom terraced house for sale in Ashley Street, Oldham, Greater Manchester, OL9 — £170,000 • 2 bed • 2 bath • 1100 ft²
2 bedroom terraced house for sale in 187 Denton Lane, Oldham, OL9 9DQ, OL9 — £165,000 • 2 bed • 1 bath
2 bedroom terraced house for sale in Long Lane, Chadderton, Oldham, OL9 — £175,000 • 2 bed • 1 bath • 743 ft²
2 bedroom terraced house for sale in Middleton Road, Chadderton, OL9 — £170,000 • 2 bed • 1 bath • 635 ft²
2 bedroom terraced house for sale in Coalshaw Green Road, Oldham, OL9 — £150,000 • 2 bed • 1 bath • 732 ft²
2 bedroom terraced house for sale in Ralstone Avenue, OL8 — £150,000 • 2 bed • 1 bath • 965 ft²


















































































