High-spec three-bedroom near schools with generous garden and terrace.
- South-facing elevated position with far-reaching sea views
- Open-plan living opening to tiered landscaped garden
- High specification kitchen, hidden utility and integrated appliances
- Underfloor heating via air-source heat pump and triple glazing
- Smart home controls for lighting, heating and security
- Three bedrooms; principal bedroom with private terrace
- Large plot but tiered garden requires regular maintenance
- Expensive council tax band; new-build systems unproven in use
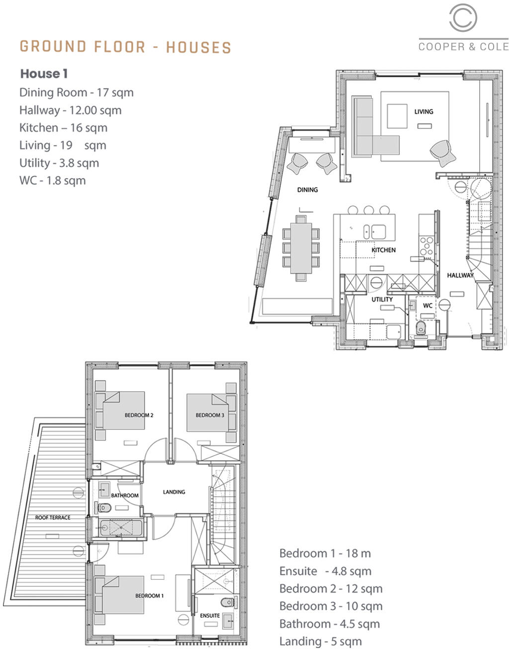
Set on an elevated plot in Hythe, this new-build detached house delivers bright, contemporary living across a generous 1,223 sq ft. The open-plan ground floor flows onto a tiered, south-facing garden through large patio doors, creating easy indoor–outdoor entertaining. High-spec finishes include an Armano-style kitchen with integrated appliances, a hidden utility, underfloor heating via air-source heat pump, triple glazing and smart controls.
Upstairs there are three well-proportioned bedrooms, the principal benefitting from a private sit-out terrace and southerly sea views. The family bathroom and en-suite feature modern Lusso white suites with gunmetal and matte black fittings. The plot is large for the area and the home is freehold, making it suitable for a family looking for contemporary coastal living near strong local schools.
Buyers should note some practical points: the property carries an expensive council tax band and the tiered landscaping will require ongoing maintenance. As a new build, services and systems are unproven in daily use — buyers may wish to verify warranties and installations. Overall, this quiet, low-crime location with fast broadband and excellent mobile signal offers a high-spec seaside home with eco-conscious running costs.
3 bedroom detached house for sale in Highridge, Hythe, Kent, CT21 — £795,000 • 3 bed • 3 bath • 1340 ft²
3 bedroom detached house for sale in Highridge, Hythe, Kent, CT21 — £695,000 • 3 bed • 3 bath • 1206 ft²
3 bedroom detached house for sale in Cliff Road, Hythe, Kent, CT21 — £525,000 • 3 bed • 2 bath
5 bedroom detached house for sale in Cliff Road, Hythe, Kent, CT21 — £2,595,000 • 5 bed • 4 bath • 5000 ft²
5 bedroom detached house for sale in Alexandra Corniche, Hythe, CT21 — £725,000 • 5 bed • 3 bath • 1368 ft²
5 bedroom detached house for sale in Alexandra Corniche, Hythe, CT21 — £895,000 • 5 bed • 3 bath • 1315 ft²










































































































