Large two-bed conversion with garden and parking in a restored Grade II building..
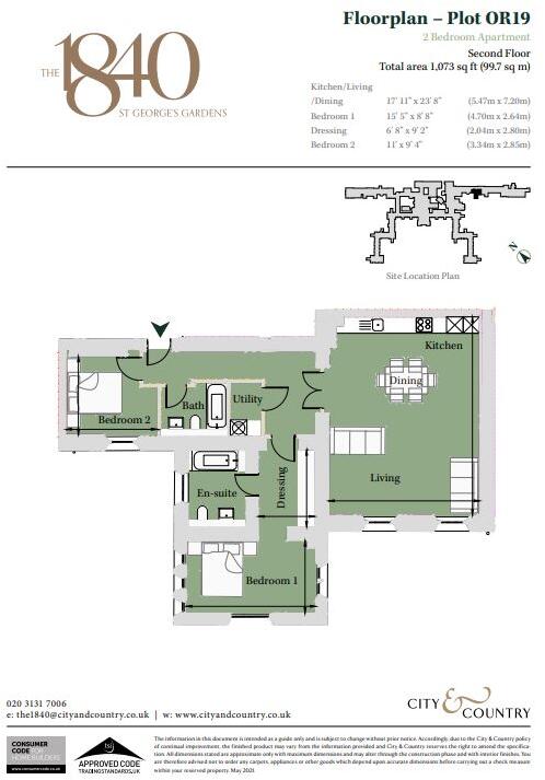
- 1,073 sq ft two-bedroom conversion with high ceilings and arched windows
- Grade II listed building; listed status restricts alterations and may add costs
- Private garden and off-street parking included
- Two bathrooms; good room proportions for family or sharers
- Leasehold with 245 years remaining
- Located between Tooting, Balham, Earlsfield and Wandsworth Common
- Area classified inner-city cosmopolitan; recorded high local crime levels
- Fast broadband; average mobile signal
A generous two-bedroom conversion offering 1,073 sq ft of characterful living in a restored Grade II listed Victorian building. High ceilings, arched windows and original brickwork give substantial room volumes and strong period character, while two bathrooms and a private garden add practical family-friendly convenience. Off-street parking and fast broadband make this a comfortable base for city commuters.
This home sits within a multi-award-winning conversion development between Tooting, Balham, Earlsfield and Wandsworth Common, putting 32 acres of green space and multiple transport links close by. The long lease (245 years) reduces short-term ownership risk, but the property is leasehold and subject to any building management charges.
Because the building is Grade II listed, external and internal alterations will be restricted and require listed-building consent; this will affect renovation scope and could add cost and time. The nearby neighbourhood is inner-city and cosmopolitan with higher recorded crime rates—buyers should weigh location benefits against local safety considerations.
Overall this is a strong option for buyers seeking a spacious period conversion with modern comforts and outside space, who accept listed-building constraints and an urban setting. Investors and owner-occupiers who value character, proximity to parks and long lease security will find clear appeal here.
 2 bedroom flat for sale in The 1840, 
1 Diana House, SW17 — £800,000 • 2 bed • 2 bath • 914 ft²
 2 bedroom flat for sale in The 1840, 
1 Diana House, SW17 — £800,000 • 2 bed • 2 bath • 914 ft² 2 bedroom flat for sale in The 1840, 
1 Diana House, SW17 — £680,000 • 2 bed • 2 bath • 763 ft²
 2 bedroom flat for sale in The 1840, 
1 Diana House, SW17 — £680,000 • 2 bed • 2 bath • 763 ft² 2 bedroom apartment for sale in The 1840, St Georges Gardens,
Glenburnie Road, 
London, 
SW17 7DJ, SW17 — £785,000 • 2 bed • 2 bath • 815 ft²
 2 bedroom apartment for sale in The 1840, St Georges Gardens,
Glenburnie Road, 
London, 
SW17 7DJ, SW17 — £785,000 • 2 bed • 2 bath • 815 ft² 2 bedroom apartment for sale in The 1840, St Georges Gardens,
Glenburnie Road, 
London, 
SW17 7DJ, SW17 — £975,000 • 2 bed • 2 bath • 1056 ft²
 2 bedroom apartment for sale in The 1840, St Georges Gardens,
Glenburnie Road, 
London, 
SW17 7DJ, SW17 — £975,000 • 2 bed • 2 bath • 1056 ft² 2 bedroom apartment for sale in The 1840, St Georges Gardens,
Glenburnie Road, 
London, 
SW17 7DJ, SW17 — £950,000 • 2 bed • 2 bath • 1073 ft²
 2 bedroom apartment for sale in The 1840, St Georges Gardens,
Glenburnie Road, 
London, 
SW17 7DJ, SW17 — £950,000 • 2 bed • 2 bath • 1073 ft² 2 bedroom apartment for sale in The 1840, St Georges Gardens,
Glenburnie Road, 
London, 
SW17 7DJ, SW17 — £740,000 • 2 bed • 2 bath • 808 ft²
 2 bedroom apartment for sale in The 1840, St Georges Gardens,
Glenburnie Road, 
London, 
SW17 7DJ, SW17 — £740,000 • 2 bed • 2 bath • 808 ft²


























































































