Spacious, low-maintenance home ideal for quieter West End living.
Top-floor corner apartment with excellent privacy and dual-aspect natural light
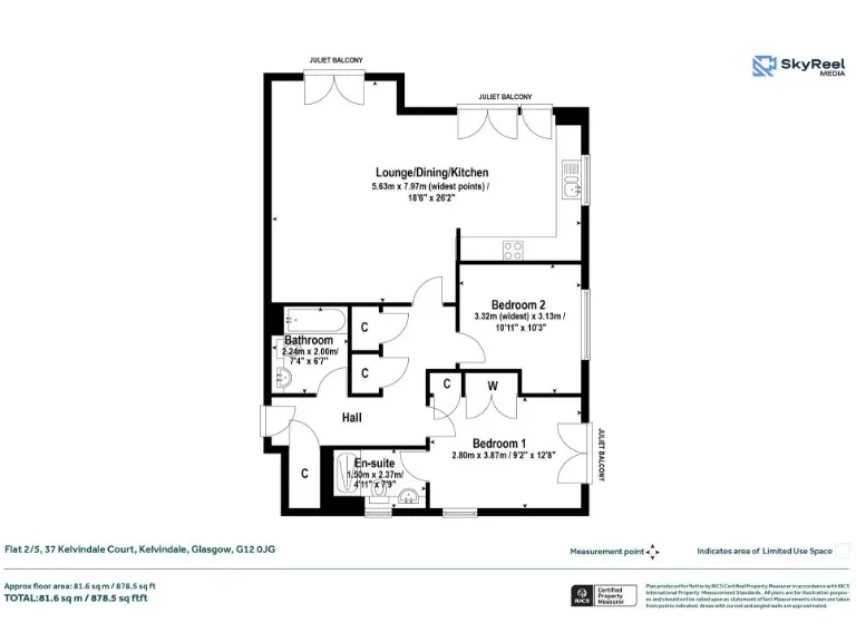
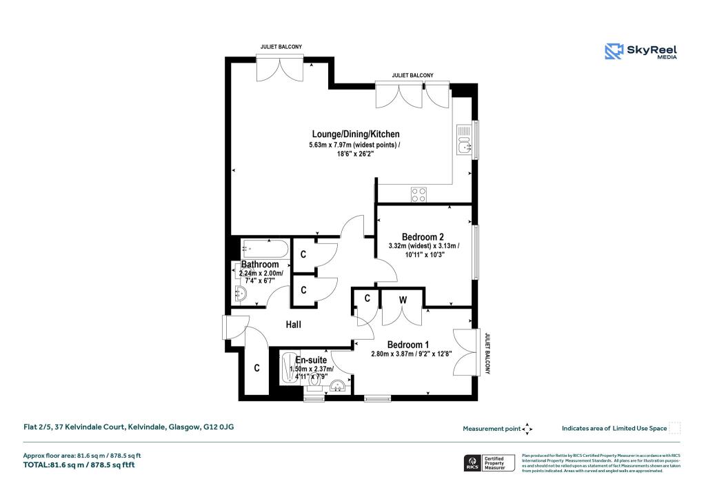
Large open-plan living, dining and kitchen with integrated appliances
Principal bedroom with fitted wardrobes and en-suite shower room
Second double bedroom and stylish main bathroom with shower over bath
Three hall storage cupboards plus large attic space for extra storage
Well-kept communal gardens and residents’ off-street parking
Excellent mobile signal and fast broadband; no flood risk
Wider area classified as very deprived — may affect long-term resale
Set in a peaceful Kelvindale cul-de-sac, this spacious two-bedroom top-floor apartment offers bright, modern living with excellent privacy and leafy outlooks. The generous open-plan living, dining and kitchen area is dual-aspect and flooded with natural light, creating a comfortable, low-maintenance home well suited to downsizers seeking space without compromise.
Both bedrooms are good doubles; the principal bedroom benefits from fitted wardrobes and an en-suite shower room, with a stylish main bathroom completing the accommodation. Practical storage is a strong feature, with three built-in cupboards and a large attic space accessed from the hall. The kitchen includes a full range of integrated appliances for immediate use.
Externally, the development is well kept with mature communal gardens and residents’ parking. Connectivity is strong: frequent local buses reach Byres Road, the University and the city centre, while the Botanic Gardens and local amenities are only a short drive away. Broadband and mobile signals are excellent, and there is no flooding risk.
Notable points to consider: the wider area is classified as very deprived, which may influence long-term resale dynamics and local services. A closing date has been set for Friday 17th October at 11am, so interested buyers should plan accordingly. Council Tax Band D and an EPC rating of B reflect typical running costs and energy performance.
2 bedroom apartment for sale in Whittingehame Drive, Kelvinside, Glasgow, G12 — £315,000 • 2 bed • 2 bath • 987 ft²
2 bedroom apartment for sale in Innellan Gardens, Kelvindale, Glasgow, G20 — £139,000 • 2 bed • 1 bath • 580 ft²
2 bedroom apartment for sale in Kelvindale Road, Kelvindale, Glasgow, G12 — £135,000 • 2 bed • 1 bath • 622 ft²
2 bedroom apartment for sale in Hughenden Gardens, Hyndland, Glasgow, G12 — £235,000 • 2 bed • 2 bath • 826 ft²
2 bedroom flat for sale in Kelvindale Gardens, Maryhill, Glasgow, G20 — £140,000 • 2 bed • 1 bath
2 bedroom apartment for sale in Beaconsfield Road, Cleveden, Glasgow, G12 — £259,000 • 2 bed • 1 bath • 911 ft²


























































































































