**Standout Features:**
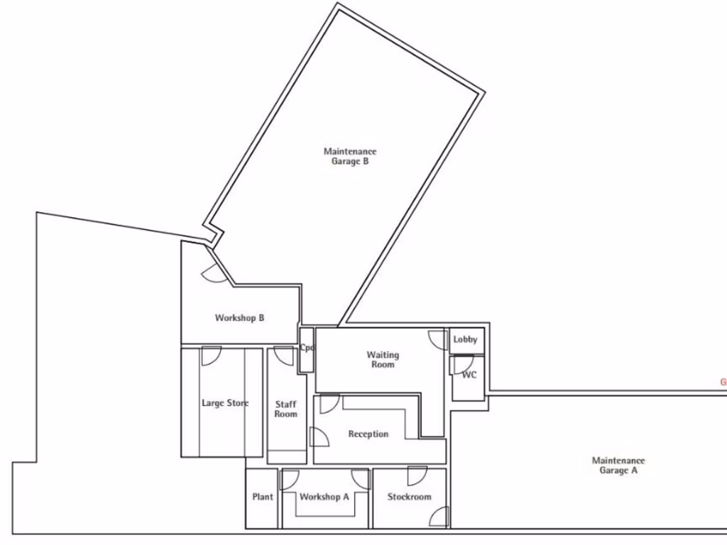
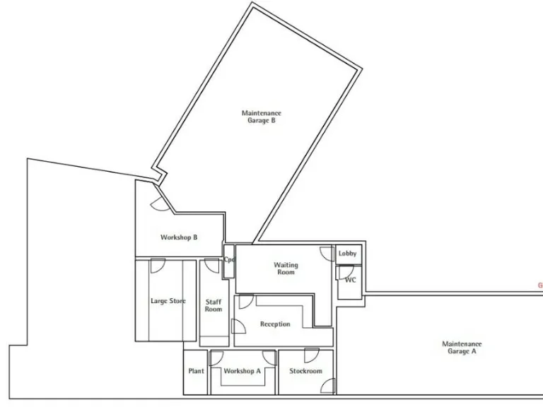
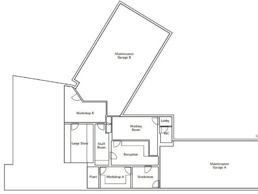
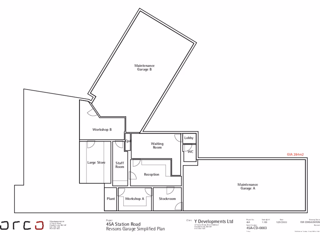
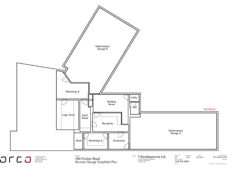
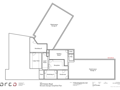
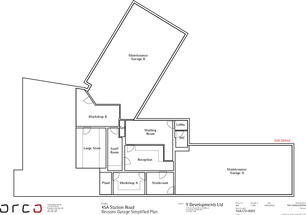
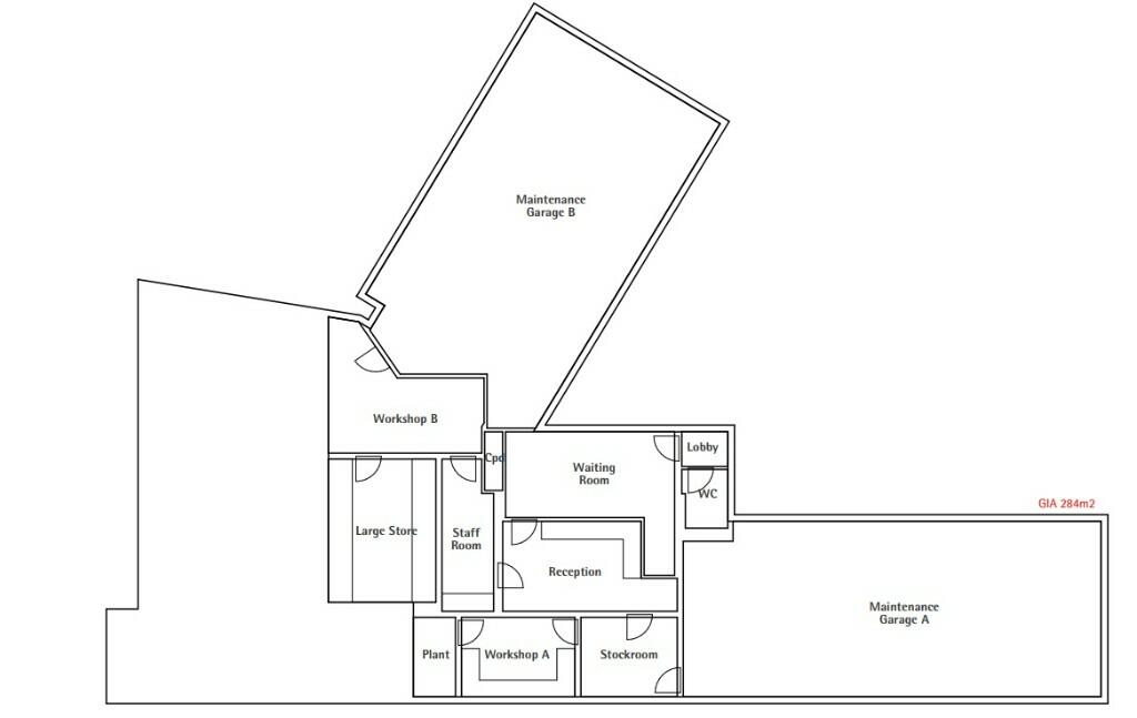
- Large industrial facility spanning 2,032 sq ft, formerly a car garage workshop
- Two spacious workshops with high ceilings and roller shutter doors
- Multiple functional areas including reception, waiting room, staff room, and secure yard
- Long lease available (999 years from 1899)
- Central location in Cheadle Hulme, offering excellent local amenities
**Potential Concerns:**
- As a former garage, the property may require inspection for any lingering maintenance issues
- Surrounded by other buildings, which may limit natural light and open views
**Property Summary:**
This substantial light industrial facility located just behind Station Road in Cheadle Hulme presents an exceptional investment or operational opportunity. With a robust layout of 2,032 sq ft made up of two workshops and various office spaces, it caters to diverse industrial applications. Each workshop features high ceilings and secure roller shutter doors, providing functionality for light manufacturing or storage needs. The property is set in a prime location with easy access to local amenities such as shops, restaurants, and public transport options.
Externally, the secure concrete yard enhances the operational capabilities, allowing for safe storage or additional working space. The appeal of a long lease ensures future flexibility for alterations or expansions, making it an attractive option for discerning buyers or investors. With a vibrant commercial atmosphere surrounding it and a low crime rate, this property not only embodies industrial potential but also offers a comfortable, secure environment for a thriving business. This unique offering is poised for swift interest—don’t miss your chance to stake your claim at this prime industrial site in a growing community!
Light industrial facility for sale in Horton Street, Stockport, SK1 3LR, SK1 — £650,000 • 1 bed • 1 bath • 14120 ft²
Light industrial facility for sale in 2a Birchfield Road, Cheadle, Greater Manchester, SK3 0SY, SK3 — £280,000 • 1 bed • 1 bath • 1674 ft²
Light industrial facility for sale in Unit 16/ 17, Haigh Park, Stockport, SK4 1QR, SK4 — £575,000 • 1 bed • 1 bath • 6825 ft²
Warehouse for sale in 32, Upper Brook Street, Stockport, SK1 3BP, SK1 — £220,000 • 1 bed • 1 bath • 3472 ft²
Light industrial facility for sale in TD Autocare, Lonsdale Street, Newton Heath, Manchester, M40 , M40 — POA • 1 bed • 1 bath • 4300 ft²
Light industrial facility for sale in Union Street, Macclesfield, Cheshire, SK11 — £275,000 • 1 bed • 1 bath • 2614 ft²






























