Single-floor living with garage, garden and straightforward purchase for downsizers.
No chain; freehold two-bedroom bungalow
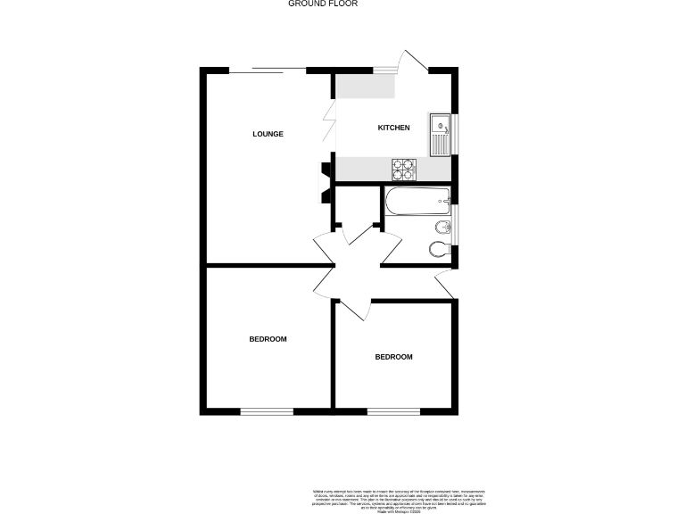
Compact footprint — approx 440 sq ft, single-storey
Garage plus block-paved driveway for off-street parking
Good-size rear garden with patio, lawn and shed
Gas central heating present; boiler not tested
Double glazing fitted (pre-2002) and EPC rating D
Built circa 1967–75; likely requires modernisation
Council tax band C; low crime and fast broadband
A compact, two-bedroom semi-detached bungalow set on a generous plot in a quiet cul-de-sac. The single-storey layout and easy-maintain gardens suit downsizers or buyers seeking a low-maintenance home within walking distance of village amenities and reliable transport into Colchester.
The property offers a garage, driveway and a good-size rear garden with patio and lawn — useful for parking, storage and outdoor living. Accommodation includes lounge with patio doors, fitted kitchen with space for appliances, two bedrooms and a bathroom. Double glazing is installed and the home is gas centrally heated (boiler not tested).
Practical points to note: the home is modest in size (about 440 sq ft) and dates from the late 1960s/early 1970s, so it will benefit from modernisation to suit contemporary tastes. The energy rating is D and double glazing appears to pre-date 2002. No chain and freehold tenure make for a straightforward purchase.
Nearby primary and secondary schools are rated Good to Outstanding, local shops and services are close by, and the area shows low crime, fast broadband and excellent mobile signal — all helpful for comfortable everyday living. This bungalow presents sensible long-term value for a buyer wanting single-floor living with garden space and off-street parking.
2 bedroom semi-detached bungalow for sale in Caroline Close, Wivenhoe, CO7 — £285,000 • 2 bed • 1 bath • 424 ft²
2 bedroom semi-detached bungalow for sale in Weavers Close, Colchester, Essex, CO3 — £325,000 • 2 bed • 1 bath • 895 ft²
2 bedroom bungalow for sale in Pauls Crescent, Elmstead, Colchester, Essex, CO7 — £280,000 • 2 bed • 1 bath • 895 ft²
2 bedroom detached bungalow for sale in Fingringhoe Road, Colchester, CO2 — £320,000 • 2 bed • 1 bath • 722 ft²
3 bedroom bungalow for sale in Fulmar Close, Colchester, Essex, CO4 — £390,000 • 3 bed • 2 bath • 792 ft²
3 bedroom house for sale in Maypole Green Road, Colchester, CO2 — £350,000 • 3 bed • 2 bath • 838 ft²






























