Renovated three-bed with large garden and planning permission.
Three bedrooms in a newly renovated layout
A neatly presented three-bedroom semi-detached house on Garrett Crescent, ready to move into after recent kitchen and bathroom refits and a new gas boiler. The home suits a small family or first-time buyer wanting low-effort accommodation with practical outdoor space and off-street parking.
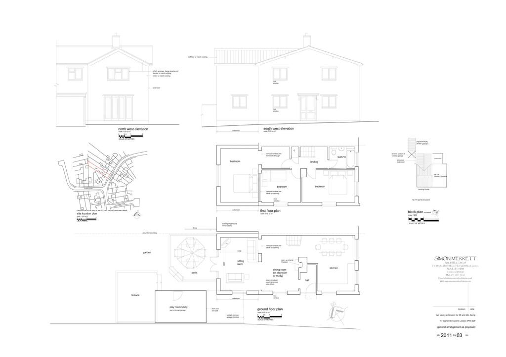
The property’s standout feature is the substantial rear garden and detached garage, providing scope for family play, gardening or extension (planning permission for a two-storey rear extension was previously granted; plans available). Driveway parking for two to three cars adds everyday convenience in this small-town location close to Leiston centre and local amenities.
Internally the layout is compact — about 558 sq ft overall — with three bedrooms and a single family bathroom. The house has double glazing installed before 2002 and partial radiators connected to the replacement gas boiler. Rooms are comfortably presented but modest in scale, reflecting the property’s mid-century build period (circa 1967–1975).
Practical positives (fast broadband, excellent mobile signal, low crime, affordable council tax) sit alongside some limitations: the small total floor area and one bathroom may feel tight for larger families, and older glazing means some longer-term maintenance or upgrade costs could arise. The previously granted planning permission gives clear potential to enlarge if more space is required.
3 bedroom semi-detached house for sale in Hancocks Close, Leiston, Suffolk, IP16 — £280,000 • 3 bed • 1 bath • 1005 ft²
3 bedroom semi-detached house for sale in Foxglove End, Leiston, IP16 — £340,000 • 3 bed • 2 bath • 1465 ft²
3 bedroom semi-detached house for sale in Andrew Close, Leiston, Suffolk, IP16 — £250,000 • 3 bed • 1 bath • 977 ft²
5 bedroom semi-detached house for sale in Waterloo Avenue, Leiston, Suffolk, IP16 — £425,000 • 5 bed • 2 bath • 1423 ft²
3 bedroom semi-detached house for sale in Central Road, Leiston, IP16 — £250,000 • 3 bed • 1 bath • 1140 ft²
3 bedroom semi-detached house for sale in Kings Road, Leiston, Suffolk, IP16 — £270,000 • 3 bed • 1 bath • 1018 ft²






































































































