PE38 9GJ - 4 bedroom town house for sale in Buttercup Drive, Downham M…

View on Property Piper

4 bedroom town house for sale in Buttercup Drive, Downham Market, PE38

Summary - 4 Buttercup Drive,DOWNHAM MARKET,PE38 9GJ PE38 9GJ

4 bed 2 bath Town House

**Standout Features:**
- Immaculate four-bedroom detached townhouse
- Modern kitchen/diner with integrated appliances and tri-fold doors
- Spacious lounge and en-suite to master bedroom
- Twin garage and well-maintained front and rear gardens
- Close proximity to train station for easy access to Cambridge and London
- Excellent mobile signal and fast broadband speeds

**Summary:**
This stunning four-bedroom detached townhouse is a perfect blend of modern living and convenience, situated in a desirable area just a stone's throw from the train line to Cambridge and London King’s Cross. Step inside to find a welcoming entrance hall leading to a spacious kitchen/diner, featuring gloss finish units and integrated appliances that open up seamlessly to the rear garden through stylish tri-fold doors. The contemporary design continues into the first-floor lounge, and the versatile layout includes a master bedroom with an en-suite along with three additional bedrooms and a family bathroom on the second floor.

A significant highlight is the property's twin garage along with attractive, well-maintained gardens that offer a peaceful retreat, making it an ideal choice for families or investors seeking rental potential in a low-crime area. The close proximity to highly-rated schools, local amenities, and green spaces adds to its appeal. However, while the property is in excellent condition, future owners may want to consider personal touches or upgrades to truly make it their own. At an attractive price point, this gem won't last long—secure your viewing today and envision making it your exclusive family haven!

Property Details

Image Descriptions

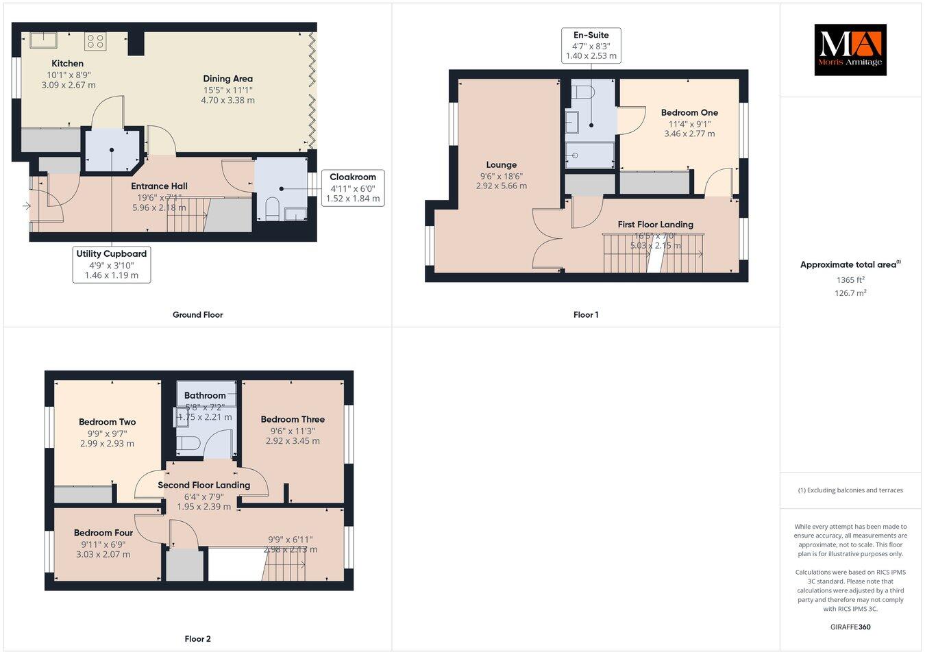
Floorplan Description

Rooms

Textual Property Features

Detected Visual Features

Nearby Schools

Nearest Bars And Restaurants

,,,,}

Nearest General Shops

,,}

Nearest Grocery shops

,,}

Nearest Supermarkets

,,}

Nearest Religious buildings

,,}

Nearest Medical buildings

,,,}

Nearest Leisure Facilities

,,,,}

Nearest Tourist attractions

,,}

Nearest Train stations

,,,,}

Nearest Bus stations and stops

,,,,}

Nearest Hotels

,,}

Tags

Local Market Stats

AirBnB Data

Similar Properties

Meta

High Res Images

Compatible Images

Low res Images

Thumbnails

Raw Images

High Res Floorplan Images

Compatible Floorplan Images

Low res Floorplan Images

FloorplanImages Thumbnail

Raw Floorplan Images