Spacious 1930s semi with large lounge/diner, garage and no onward chain..
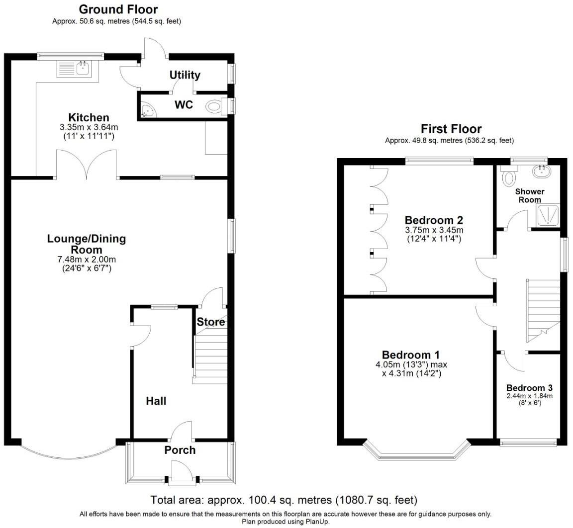
- Extended three-bedroom semi-detached house, c.1080 sq ft
- Over 24ft lounge/diner with bay window and understairs storage
- Fitted kitchen/diner, utility room and ground-floor WC
- Detached single garage and driveway parking
- Chain free — immediate exchange possible
- EPC D; likely solid brick walls with limited insulation
- Small-to-average rear garden; neighbours close either side
- Good access to University Hospital, schools, M6/M69
This extended three-bedroom semi-detached home in Wyken offers generous living space over c.1,080 sq ft and is offered chain free — ideal for a first-time buyer or growing family. The over-24ft lounge/diner and separate fitted kitchen/diner provide flexible daily living, while a useful utility and ground-floor WC add practical convenience. A detached single garage and driveway provide off-street parking.
Positioned close to University Hospital Coventry, local shops, schools and key road links (M6, M69), the location suits commuters and NHS staff. The property dates from the 1930s and retains period features such as bay windows and a brick façade, giving character alongside practical family accommodation.
The home is presented in sound, average condition but offers scope to modernise — particularly kitchen, shower room and heating controls — to raise comfort and value. Note the EPC rating of D, solid-brick construction likely with limited wall insulation, and a small-to-average rear garden typical of suburban plots. Neighbouring houses are close on either side, so long-distance views are not a feature.
Overall this is a well-proportioned, reasonably priced family house with good transport links and schools nearby. It will suit buyers looking for immediate, practical accommodation with clear potential to update and personalise over time.
3 bedroom end of terrace house for sale in Sewall Highway, Wyken, Coventry, CV2 3NX, CV2 — £235,000 • 3 bed • 1 bath • 1087 ft²
3 bedroom semi-detached house for sale in Wyken Way, Coventry, CV2 — £235,000 • 3 bed • 1 bath • 1083 ft²
3 bedroom terraced house for sale in Tiverton Grove, Coventry, West Midlands, CV2 — £280,000 • 3 bed • 1 bath • 860 ft²
3 bedroom terraced house for sale in Dennis Road, Coventry, West Midlands, CV2 — £245,000 • 3 bed • 1 bath • 1042 ft²
3 bedroom semi-detached house for sale in Attoxhall Road, COVENTRY, West Midlands, CV2 — £220,000 • 3 bed • 1 bath • 1027 ft²
3 bedroom terraced house for sale in Hipswell Highway, Wyken, Coventry, CV2 5FN, CV2 — £220,000 • 3 bed • 1 bath • 1037 ft²










































































