GU29 9DG - 3 bedroom semidetached house for sale in Rumbolds Hill, Mid…

View on Property Piper

3 bedroom semi-detached house for sale in Rumbolds Hill, Midhurst, West Sussex, GU29

Summary - Rumbolds Hill, Midhurst, West Sussex, GU29 GU29 9DG

3 bed 2 bath Semi-Detached

**Standout Features:**
- **Three Bedrooms and Two Bathrooms**: Ample space for families or rental investors.
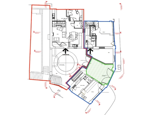
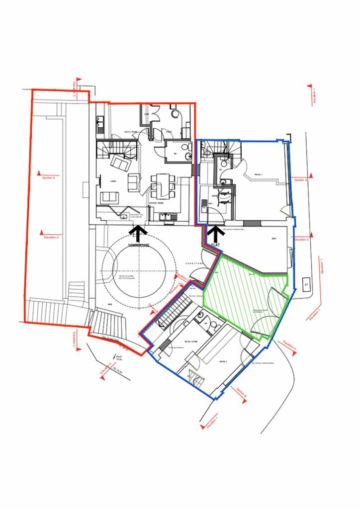
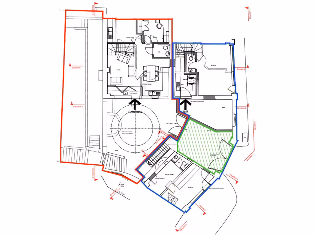
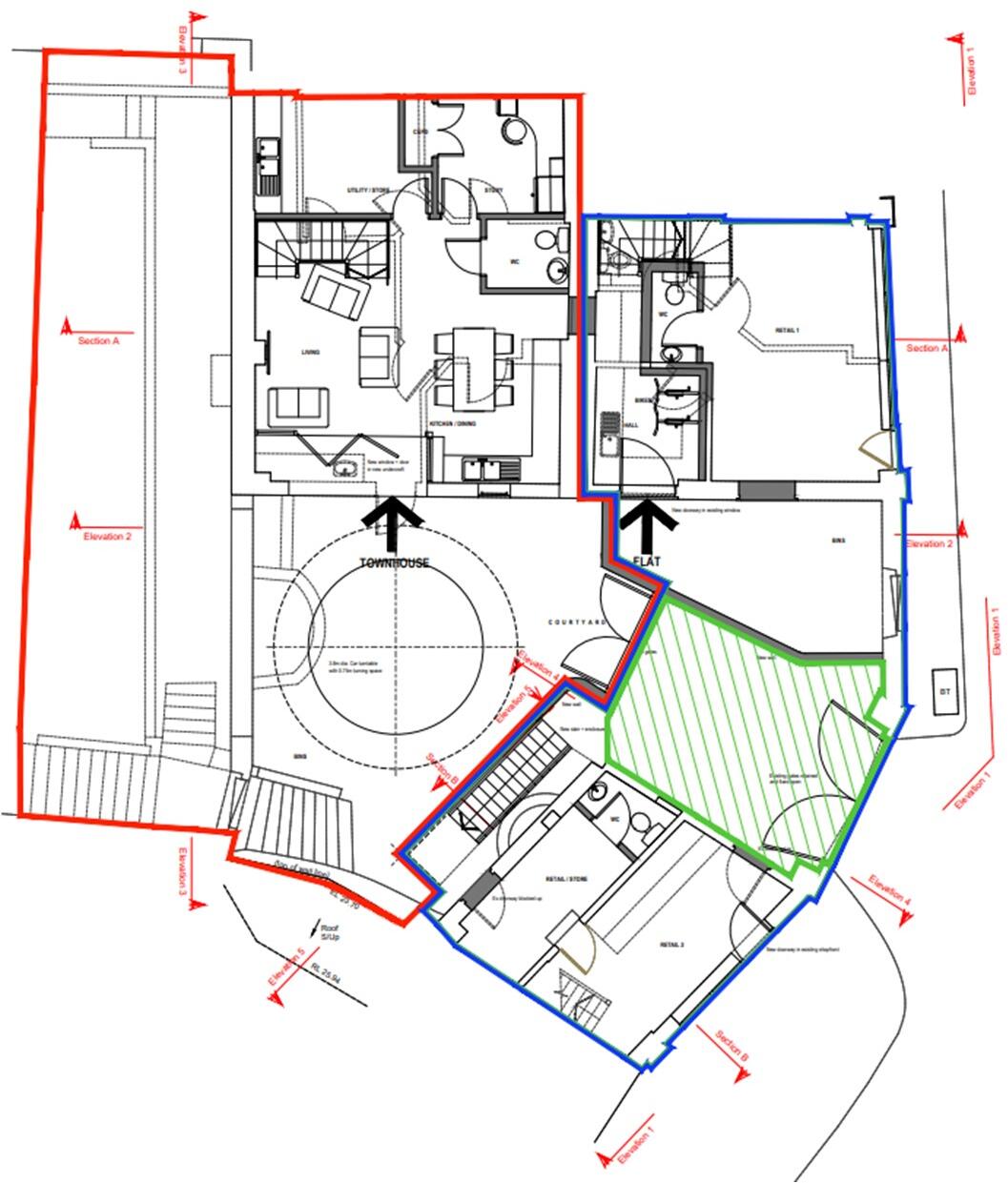
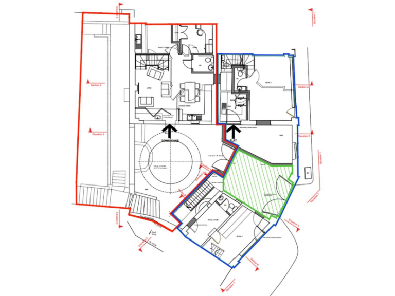
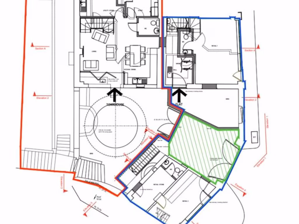
- **Planning Permission Granted**: Full consent has been approved for an attractive renovation at South Downs National Park (SDNP/24/00452/FUL).
- **Off-Street Parking and Private Garden**: Convenient city living with outdoor space.
- **Historic Character**: Rustic stone and brick exterior add charm.

**Concerns:**
- **Requires Renovation**: Needs significant updating, allowing buyers to customize to their taste.
- **Small Plot Size**: Limited outdoor space might not appeal to those seeking sizable gardens.

**Summary:**
Seize the opportunity to transform this semi-detached town-house, ideally located in a tranquil yet vibrant town environment with access to amenities, parks, and excellent schools. Spanning 1,241 sq ft, this property features three spacious bedrooms, two baths, and scopes for a striking open-plan living area that merges historic charm with modern living. With planning permission already in place for renovations, you can create a stunning home tailored to your preferences or utilize it as a promising rental investment due to its desirable location near South Downs National Park. However, be aware that the property needs renovation, presenting the chance to design a unique living space that reflects your style. Enjoy the benefits of a low-crime area and excellent mobile signal while envisioning your dream home. Don't miss out—properties with this potential in such a desirable setting are rare!

Property Details

Brochure Descriptions

Image Descriptions

Floorplan Description

Rooms

Textual Property Features

Detected Visual Features

Nearby Schools

Nearest Bars And Restaurants

,,,,}

Nearest General Shops

,,}

Nearest Grocery shops

,,}

Nearest Supermarkets

,,}

Nearest Religious buildings

,,}

Nearest Medical buildings

,,,}

Nearest Airports

}

Nearest Leisure Facilities

,,,,}

Nearest Tourist attractions

,,}

Nearest Train stations

,,,,}

Nearest Bus stations and stops

,,,,}

Nearest Hotels

,,}

Tags

Local Market Stats

AirBnB Data

Similar Properties

Meta

High Res Images

Compatible Images

Low res Images

Thumbnails

Raw Images

High Res Floorplan Images

Compatible Floorplan Images

Low res Floorplan Images

FloorplanImages Thumbnail

Raw Floorplan Images