Spacious family home with garage and driveway near countryside walks.
Detached three-bedroom house with orangery and large paved patio
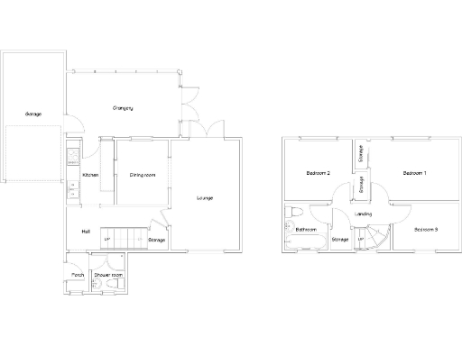
This three-bedroom detached house in New Inn offers a practical family layout with an eye-catching orangery and a large paved patio for outdoor living. Set on a decent plot with a garage and generous driveway, the property provides straightforward parking and external space for gardening or storage. Internally the home measures approximately 930 sqft and includes a lounge, separate dining room, kitchen, ground-floor shower room and three first-floor bedrooms.
The orangery is a notable selling point: tiled floor, Velux windows and French doors create a bright, flexible room that links easily to the garden and the garage. Bedrooms one and two have fitted wardrobes and the accommodation is ready to occupy, sold freehold and chain free for a quicker completion. Local green space, a reservoir nearby and good village amenities add lifestyle appeal for families who enjoy walks and easy outdoor access.
Important drawbacks are factual and should be considered: broadband speeds are very slow, which may affect home working and streaming. The wider area records high levels of deprivation despite very low crime, which may influence long-term value and local services. Overall this is a practical, well-presented detached house with useful extra space in the orangery — suited to buyers wanting immediate occupation, parking provision, and outdoor space, but who can tolerate limited internet connectivity.
3 bedroom detached house for sale in Afon Close, New Inn, NP4 — £300,000 • 3 bed • 1 bath • 1141 ft²
3 bedroom detached house for sale in Alder Close, New Inn, NP4 — £290,000 • 3 bed • 1 bath • 915 ft²
3 bedroom detached house for sale in Larch Close, New Inn, NP4 — £300,000 • 3 bed • 2 bath • 1470 ft²
3 bedroom semi-detached house for sale in Hillcrest, Pontypool, NP4 — £220,000 • 3 bed • 1 bath
3 bedroom detached house for sale in Usk Road, Pontypool, NP4 — £400,000 • 3 bed • 1 bath • 1561 ft²
4 bedroom detached house for sale in New Inn, Pontypool, NP4 — £450,000 • 4 bed • 2 bath • 1270 ft²


















































































































