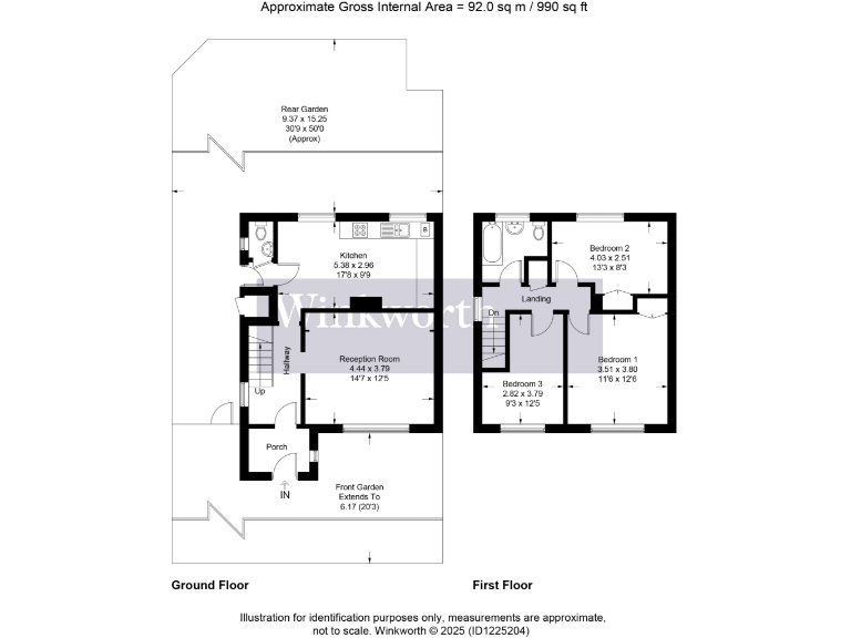
**Standout Features:**
- Spacious 3-bedroom end-of-terrace property **(990 sq ft)**.
- Modern kitchen/diner with ample natural light.
- Large rear garden with potential for extension (STPP).
- Driveway parking for multiple vehicles.
- Conveniently located to major roads and schools.
**Notable Concerns:**
- Average garden size—limited views.
- Above-average local crime rate.
---
Discover this inviting three-bedroom end-of-terrace home, ideal for families seeking comfort and potential in the South Borehamwood area. With a generous 990 square feet, the property boasts a modern kitchen/diner that brings in plenty of natural light, perfect for family gatherings and culinary adventures. Enjoy the large rear garden, which offers room for outdoor activities and possibilities for future expansion, subject to planning permissions.
Conveniently positioned near main transport routes and several highly rated local schools, including Yavneh College and Kenilworth Primary, this residence is perfectly suited for family living. While the area may have above-average crime rates, its community feel and easy access to amenities like bus routes and local shops make it a practical choice for new homeowners or investors. Take advantage of the comfortable layout and make this home your own—opportunities like this don't last long!
4 bedroom terraced house for sale in Ashley Drive, Borehamwood, Hertfordshire, WD6 — £595,000 • 4 bed • 2 bath • 1313 ft²
3 bedroom end of terrace house for sale in Byron Avenue, Borehamwood, WD6 — £450,000 • 3 bed • 1 bath • 968 ft²
3 bedroom semi-detached house for sale in Shenley Road, Borehamwood, Hertfordshire, WD6 — £560,000 • 3 bed • 1 bath • 1035 ft²
3 bedroom house for sale in Kenilworth Drive, Borehamwood, WD6 — £425,000 • 3 bed • 1 bath • 710 ft²
3 bedroom house for sale in Reston Path, Borehamwood, WD6 — £500,000 • 3 bed • 2 bath • 840 ft²
3 bedroom end of terrace house for sale in Whitehouse Avenue, Borehamwood, WD6 — £599,950 • 3 bed • 2 bath • 1071 ft²














































