Generous rooms, stylish bathroom and easy commuter access to town and station.
Bay-fronted Victorian terrace with period character and bay window
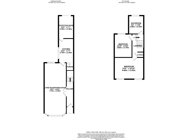
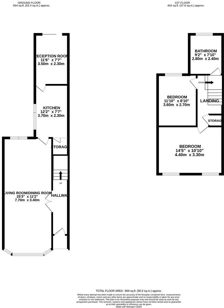
Open-plan lounge/diner plus separate rear reception room (flexible use)
Two double bedrooms and a striking four-piece bathroom
Secluded rear garden with lawn and paved patio, low maintenance
Approximately 969 sq ft of internal space across two storeys
No off-street parking; small front forecourt only
Offered freehold and chain free for quicker completion
Local area records higher-than-average crime — consider security costs
This bay-fronted Victorian terrace combines period character with well-presented contemporary finishes. The ground floor offers an impressive open-plan living/dining room with a feature bay window and a separate rear reception room that works well as a home office or playroom. Upstairs are two double bedrooms and a standout four-piece bathroom with both a freestanding bath and separate shower. The layout provides comfortable living space across two storeys and totals approximately 969 sq ft.
The rear garden is secluded with lawn and a paved patio — a practical, low-maintenance outdoor space for summer entertaining. The location is especially convenient: a short walk to Kettering town centre and the railway station, with fast broadband and excellent mobile signal for commuters and home workers. The property is offered freehold and chain free, which supports a quick transaction.
Practical considerations: the plot is modest with no off-street parking and a small front walled forecourt typical of terraced homes. The local area records higher-than-average crime, which buyers should factor into budgeting for security and insurance. While the interior is presented in good decorative order, there remains scope for minor modernisation to add value if desired.
This home will suit first-time buyers or small families wanting good-sized rooms, character features, and commuter convenience. It also presents appeal for investors seeking a well-located two-bedroom terrace offered with no onward chain.
2 bedroom terraced house for sale in NN15 Roundhill Road, Kettering, NN15 — £200,000 • 2 bed • 1 bath • 637 ft²
2 bedroom terraced house for sale in William Street, Kettering, NN16 — £175,000 • 2 bed • 1 bath • 654 ft²
3 bedroom terraced house for sale in NN15 Argyll Street, Kettering, NN15 — £190,000 • 3 bed • 1 bath • 740 ft²
2 bedroom terraced house for sale in Kingsley Avenue, Kettering, NN16 — £220,000 • 2 bed • 1 bath • 1055 ft²
2 bedroom terraced house for sale in St. Peters Avenue, Kettering, NN16 — £240,000 • 2 bed • 2 bath • 1052 ft²
4 bedroom terraced house for sale in William Street, Kettering NN16 — £290,000 • 4 bed • 2 bath • 1194 ft²


















































