Convenient single-storey living with garage and no upward chain.
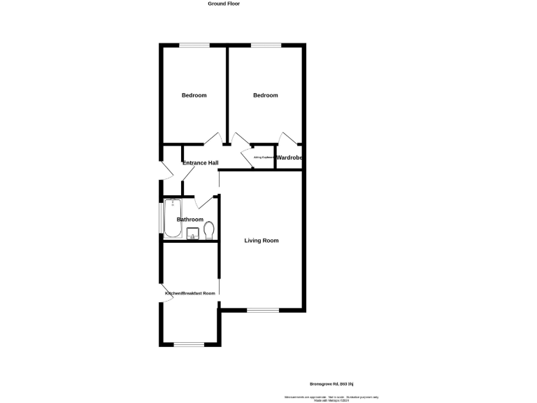
- Two-bedroom semi-detached bungalow, single-storey living, ~700 sq ft
- Extended kitchen with integral oven, hob and space for table
- Good-size living room with bay window and fireplace
- Rear garage with rear access and small pleasant garden
- Carpets, curtains and light fittings included; no upward chain
- Built 1950–66, filled cavity walls, PVC double glazing, EPC C
- Small plot and modest room sizes; loft access for storage
- Above-average local crime rates; consider security measures
This extended two-bedroom semi-detached bungalow offers comfortable single-storey living in a well-served Halesowen neighbourhood. The layout includes a good-size living room with bay window and fireplace, an extended kitchen with integral oven and hob plus space for a small table, two decent bedrooms and an attractively tiled bathroom with shower. A rear garage and pleasant rear garden add practical parking and outdoor space. Carpets, curtains and light fittings are included and there is no upward chain, allowing a quick move.
Constructed in the mid-20th century with filled cavity walls, PVC double glazing and gas central heating via boiler and radiators, the home is modestly energy rated (EPC C) and spans about 700 sq ft. The property sits on a small plot and has loft access from the hall; useful storage is provided by a built-in cupboard housing the boiler. Broadband and mobile coverage are strong locally and main services are connected.
The bungalow suits downsizers or buyers seeking a compact, ground-floor home near schools and amenities. The attractive bathroom and ready-to-use kitchen reduce immediate work, though the property’s mid-century finishes mean cosmetic updating could add value. Note the area records above-average crime and the plot is modest in size, factors buyers should weigh against the convenience and no-chain position.
1 bedroom detached bungalow for sale in HALESOWEN, Drews Holloway, B63 — £219,000 • 1 bed • 1 bath • 549 ft²
2 bedroom semi-detached bungalow for sale in Badgers Croft, HALESOWEN, B62 — £220,000 • 2 bed • 1 bath • 609 ft²
2 bedroom semi-detached bungalow for sale in Woodridge Road, Halesowen, B63 — £260,000 • 2 bed • 1 bath • 855 ft²
2 bedroom semi-detached bungalow for sale in HALESOWEN, Holcroft Road, B63 — £230,000 • 2 bed • 1 bath • 718 ft²
2 bedroom bungalow for sale in Parkway Road, Dudley, West Midlands, DY1 — £240,000 • 2 bed • 1 bath • 814 ft²
2 bedroom semi-detached bungalow for sale in Drews Holloway, Halesowen, B63 — £230,000 • 2 bed • 1 bath • 668 ft²










































