Large private garden, garage and parking in a quiet tucked-away setting.
Three bedrooms with two reception rooms for flexible family living
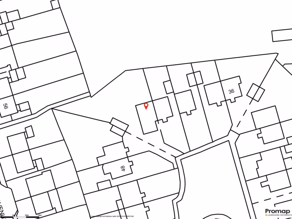
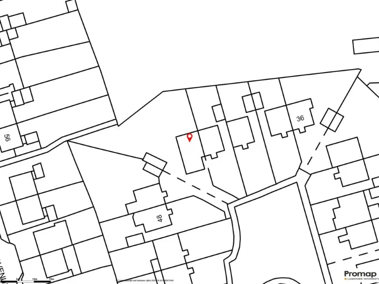
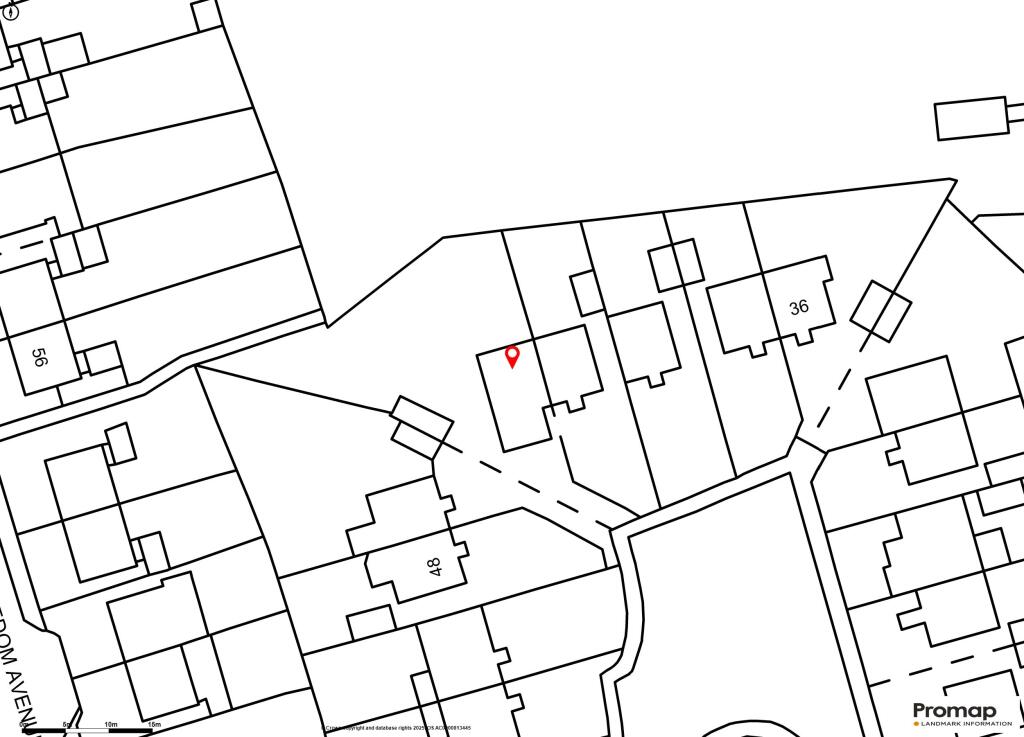
Tucked away in a popular Yeovil neighbourhood, this well-presented three-bedroom semi-detached house suits families seeking private outdoor space and practical living. The layout includes two reception rooms, a cloakroom and a four-piece family bathroom, all arranged across a compact, easy-to-manage footprint.
Externally the property stands out for its large, enclosed wrap-around garden, larger-than-average garage and off-road parking for multiple vehicles — rare for this style and location. The home benefits from mains gas heating, warm-air system and UPVC double glazing, plus fast broadband and excellent mobile signal for modern family life.
The house dates from the 1950s–1960s and shows typical mid-century construction: cavity walls are assumed to lack loft or wall insulation, so improving thermal performance and reducing running costs may be needed. At around 813 sq ft the accommodation is modest for three bedrooms and there is a single main bathroom, which may feel busy at peak times. Overall this is a comfortable, private family home with good scope for small energy-efficiency upgrades and cosmetic modernisation to suit a buyer looking for move-in readiness with future improvement potential.
3 bedroom semi-detached house for sale in Monks Dale, YEOVIL, BA21 — £210,000 • 3 bed • 2 bath • 862 ft²
3 bedroom semi-detached house for sale in Cedar Grove, Yeovil, Somerset, BA21 — £280,000 • 3 bed • 1 bath • 630 ft²
4 bedroom semi-detached house for sale in Roe Avenue, Houndstone, Yeovil, Somerset, BA22 8SD, BA22 — £322,500 • 4 bed • 1 bath • 925 ft²
4 bedroom detached house for sale in Swallowcliffe Gardens, Yeovil, Somerset, BA20 — £367,000 • 4 bed • 2 bath • 1509 ft²
3 bedroom semi-detached house for sale in St Marys Crescent, Yeovil, BA21 — £230,000 • 3 bed • 1 bath • 886 ft²
4 bedroom detached house for sale in Marsh Lane, Yeovil, Somerset, BA21 3BX, BA21 — £495,000 • 4 bed • 3 bath • 2415 ft²


















































































