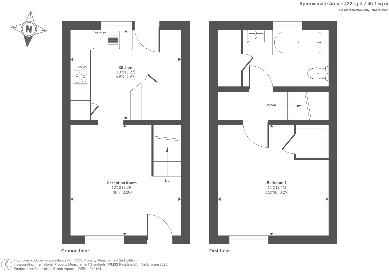
**Standout Features:**
- One-bedroom terraced house in Manor Park
- Allocated parking space with three additional spaces
- Modern kitchen with breakfast bar and garden access
- Comfortable living room, double bedroom with storage cupboard
- Well-maintained garden with direct access
- Chain-free sale for quick purchase
- Excellent local amenities and schools nearby
- Low crime area with affluent surroundings
- Potential for personalization and future renovations
This charming one-bedroom terraced house is an ideal opportunity for first-time buyers or investors looking for a low-maintenance property. Nestled in a family-oriented neighborhood between Newbury and Thatcham, it features a modern kitchen that opens to a lovely garden, perfect for enjoying sunny days or hosting gatherings. The cozy living room and double bedroom with built-in storage cater to comfort and functionality, while the additional parking spaces enhance convenience for guests or potential tenants.
With no onward chain and a council tax that is considerate of your budget, this home truly represents "move-in ready" living. The surrounding area boasts excellent schools rated "Good", parks, and leisure amenities that foster a secure and supportive community atmosphere. While the overall size of 432 square feet may be compact, the potential for personalization allows you to create a space that reflects your style. Take advantage of this unique offering in a sought-after location—homes like this won't last long on the market. Don't miss your chance to plant your roots in Manor Park!
1 bedroom terraced house for sale in Newbury, Berkshire, RG14 — £235,000 • 1 bed • 1 bath • 426 ft²
1 bedroom terraced house for sale in Harrington Close, Newbury, Berkshire, RG14 — £230,000 • 1 bed • 1 bath • 418 ft²
1 bedroom end of terrace house for sale in Newbury, Berkshire, RG14 — £235,000 • 1 bed • 1 bath • 428 ft²
3 bedroom end of terrace house for sale in Fairfax Place, Newbury, Berkshire, RG14 — £365,000 • 3 bed • 2 bath • 834 ft²
1 bedroom terraced house for sale in Newbury, Berkshire, RG14 — £200,000 • 1 bed • 1 bath • 524 ft²
2 bedroom semi-detached house for sale in Marston Drive, Newbury, RG14 — £315,000 • 2 bed • 1 bath • 604 ft²














































































