**Standout Features:**
- Three bedrooms, including a converted attic room
- Chain-free sale, available tenanted or with vacant possession
- Private low-maintenance rear yard
- On-street parking available
- Currently tenanted with immediate rental yield potential
- Fast broadband and excellent mobile signal
**Potential Concerns:**
- Solid brick construction with no insulation (assumed)
- High local crime rate
- Area classified as very deprived
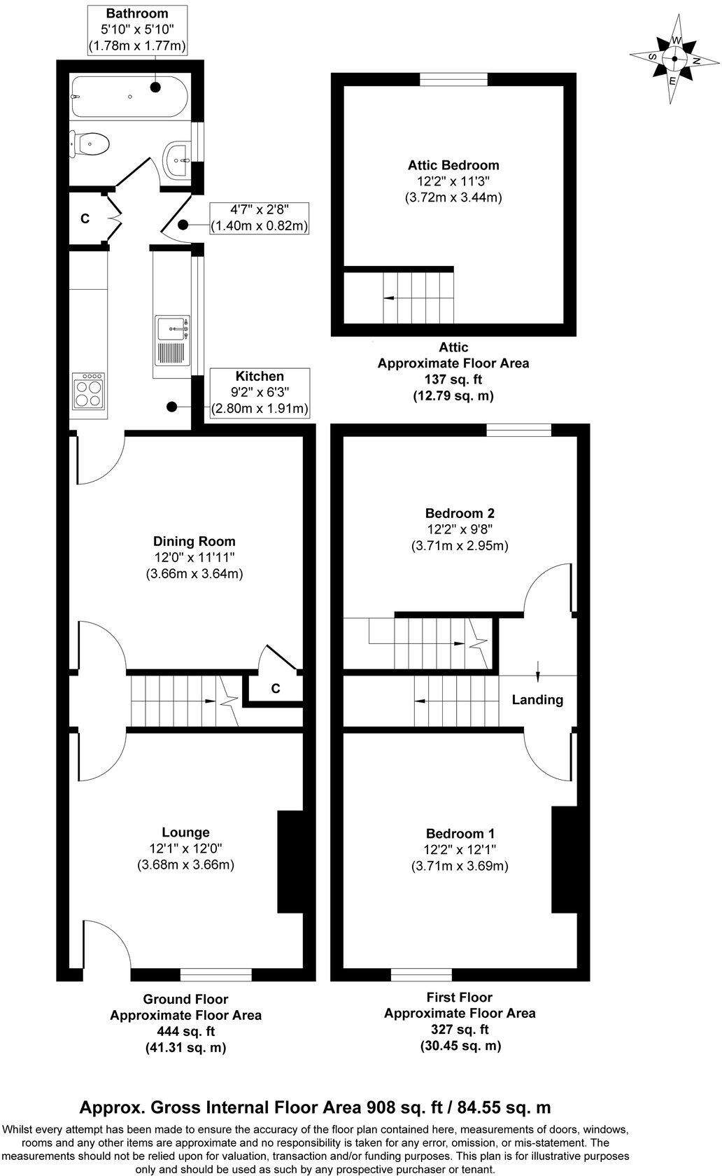
Welcome to this charming Victorian terraced house located in the heart of Gainsborough. This spacious three-bedroom property offers a unique opportunity, whether you are looking for a family home or investment potential, as it can be sold either tenanted or vacant. With a fantastic layout including a spacious living area, dining room, fitted kitchen, and family bathroom, it promises comfortable living. The converted attic adds extra space, perfect for use as a bedroom or home office.
The private rear yard affords a low-maintenance outdoor area, while on-street parking is conveniently available. Enjoy the benefits of fast broadband and excellent mobile connectivity, enhancing your lifestyle or rental appeal. Although the local crime rate is moderate, the community offers essential amenities within close reach, including schools and shops.
With a competitive price of £65,000 and no forward chain, this property presents a lucrative opportunity that won't last long on the market. Secure your future in this growing area today!



















































































