Chain-free 4-bedroom home on a large south-west garden with major renovation potential..
Approximately 0.3 acre south-west facing garden ideal for family use
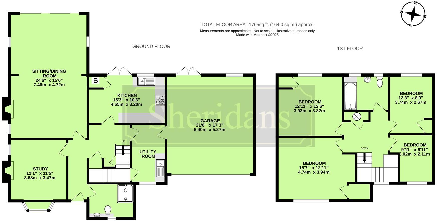
Detached double garage and wide block-paved in/out driveway
Chain free with gas central heating and later double glazing
Four double bedrooms with large sitting and separate family rooms
Requires renovation and updating throughout, including insulation
Scope to extend or reconfigure (subject to planning permission)
Very slow broadband speeds in the area — may affect home working
Council tax band high; local crime levels reported above average
Set on a mature, south-west facing plot of approximately 0.3 acre, this four-bedroom detached house offers substantial family accommodation and clear scope to modernise and extend (stpp). The layout includes a large sitting room with sliding doors to the garden, a separate family/dining room with bay window, kitchen with adjoining utility and a ground-floor wet room — practical for multi-generation living. The property is offered chain free and benefits from gas central heating and double glazing installed after 2002.
The house requires renovation throughout: cosmetic updating, insulation improvements and likely system upgrades are needed to bring it up to contemporary standards. The walls are cavity construction with no insulation assumed, and the build date and current condition present an opportunity for buyers wanting to add value through refurbishment or extension (subject to planning).
Practical strengths include a generous block-paved in/out driveway, detached double garage with internal access, sizeable south-west garden ideal for family use and outdoor entertaining, and a convenient non-estate location within easy reach of Bury St Edmunds town centre and local schools. Important practical notes: broadband performance is very slow in this location, council tax band is high, and local crime levels are reported above average — factors to consider when deciding suitability.
An open day is scheduled for Saturday 4th October 2025 between 2pm–6pm by appointment only. This property will suit a growing family or buyer seeking a refurbishment project in a desirable, well-located plot with scope to extend (stpp).
4 bedroom detached house for sale in Hepworth Avenue, Bury St. Edmunds, IP33 — £300,000 • 4 bed • 2 bath
3 bedroom detached house for sale in Briarwood Avenue, Bury St. Edmunds, IP33 — £445,000 • 3 bed • 1 bath • 1363 ft²
4 bedroom detached house for sale in Brayfield Close, Bury St. Edmunds, Suffolk, IP32 — £375,000 • 4 bed • 3 bath • 1080 ft²
5 bedroom detached house for sale in Sicklesmere Road, Bury St. Edmunds, IP33 — £685,000 • 5 bed • 2 bath • 2500 ft²
2 bedroom detached bungalow for sale in Horringer Road, Bury St. Edmunds, IP33 — £325,000 • 2 bed • 1 bath • 774 ft²
3 bedroom detached house for sale in Northgate Avenue, Bury St Edmunds, IP32 — £350,000 • 3 bed • 2 bath














































































































