Solid rental pick for investors seeking low-cost refurbishment opportunities in central Middlesbrough.
Price £45,000 — very low entry point for investors
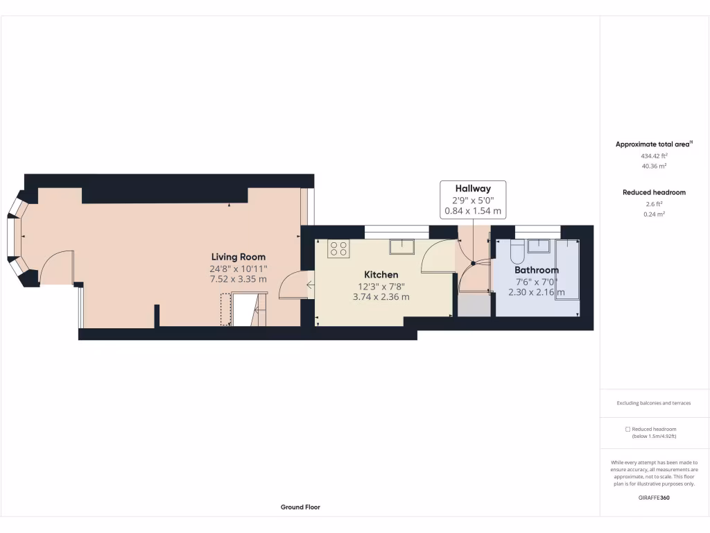
Located in Middlesbrough town centre, this two-bedroom Victorian terrace offers clear rental and flip potential at a low entry price. The property’s large through living/dining room and two double bedrooms provide a straightforward layout attractive to renters or buyers seeking short-term refurbishment projects. Gas central heating (combi boiler) and double glazing are already in place, reducing immediate expenditure on heating and insulation.
The house sits on a small plot with a rear yard and compact room sizes across approximately 685 sq ft. The interior is functional but basic and will benefit from modernization — kitchen and bathroom upgrades would increase rental income and resale value. The property’s modest dimensions and traditional layout keep maintenance manageable.
Important considerations: the surrounding area is classified as very deprived with very high local crime rates, which will affect tenant demand and rental yield risk. From July 2023 the property falls inside a selective licensing zone, so purchasers may face licensing costs and compliance requirements. Tenure details are not confirmed and should be clarified before purchase.
This is a clear low-cost entry for an investor or a renovator prepared to manage long-term tenancy challenges and local licensing obligations. For a buyer focused on cash yield or a value-added refurbishment, the location and price create room for upside after works and professional management.
2 bedroom terraced house for sale in Tennyson Street, Middlesbrough, TS1 — £70,000 • 2 bed • 1 bath • 673 ft²
2 bedroom terraced house for sale in Meath Street, Middlesbrough, TS1 — £72,500 • 2 bed • 1 bath • 627 ft²
2 bedroom terraced house for sale in Worcester Street, Middlesbrough, TS1 — £62,500 • 2 bed • 1 bath • 765 ft²
3 bedroom end of terrace house for sale in Chester Street, Middlesbrough, TS1 — £90,000 • 3 bed • 1 bath • 819 ft²
2 bedroom terraced house for sale in Aire Street, Middlesbrough, TS1 — £75,000 • 2 bed • 1 bath • 883 ft²
2 bedroom terraced house for sale in Essex Street, MIDDLESBROUGH, Cleveland, TS1 — £75,000 • 2 bed • 1 bath • 817 ft²










































