Contemporary second-floor apartment near Mile End Park and transport.
Bright reception with open-plan kitchen and wood flooring
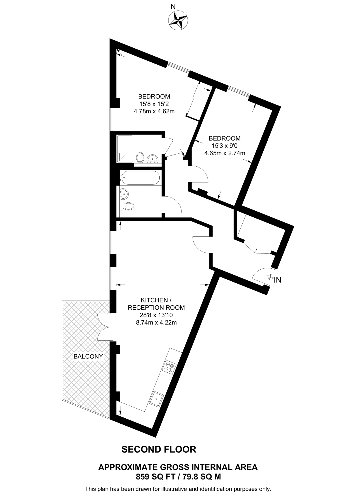
Light-filled, well laid-out two-bedroom apartment on the second floor, offering a contemporary open-plan living space and a private balcony overlooking the development. The modern kitchen has integrated appliances and under-cabinet lighting; the larger bedroom benefits from an en suite, while a separate stylish bathroom serves guests.
Set within a secure block with lift access, this home sits moments from Mile End Park and close to Devons Road station, providing easy green-space access and useful transport links. At about 859 sq ft the flat is an average-sized apartment that will suit couples or first-time buyers seeking ready-to-move-in accommodation with low immediate upgrade needs.
Important practical details: the property is leasehold and heated via a community scheme, which may affect service charges and control over heating. The surrounding area has higher-than-average crime figures and local deprivation indicators, so buyers should check local safety and community services. Overall, the flat offers modern finishes and transport convenience but buyers should factor running costs and neighbourhood considerations into their decision.
2 bedroom flat for sale in Nellie Cressal Way, E3, Bow, London, E3 — £550,000 • 2 bed • 2 bath • 806 ft²
2 bedroom flat for sale in Geoff Cade Way, E3, Bow, London, E3 — £550,000 • 2 bed • 2 bath • 877 ft²
2 bedroom flat for sale in Bootmakers Court, Ben Jonson Road, Stepney, London, E1 — £500,000 • 2 bed • 2 bath • 824 ft²
2 bedroom flat for sale in Nellie Cressall Way, Mile End, London, E3 — £500,000 • 2 bed • 2 bath • 815 ft²
2 bedroom flat for sale in Yeo Street, Mile End, London, E3 — £400,000 • 2 bed • 2 bath • 753 ft²
2 bedroom flat for sale in Palmers Road, Palmers Road, Bethnal Green, London, E2 — £575,000 • 2 bed • 2 bath • 787 ft²


























































































































