CH63 0HH - 4 bedroom detached house for sale in Dibbinsdale Road, Brom…

View on Property Piper

4 bedroom detached house for sale in Dibbinsdale Road, Bromborough, CH63

Summary - 26 DIBBINSDALE ROAD WIRRAL CH63 0HH

4 bed 2 bath Detached

**Key Features:**
- Spacious detached family home with a versatile layout
- Four bedrooms (three doubles with built-in wardrobes)
- Modern kitchen extension offering gorgeous garden views
- Large, southerly-facing garden with patio, lawn, and storage structures
- Convenient single garage and off-street parking
- Located in a low-crime, affluent area with excellent amenities and schools nearby

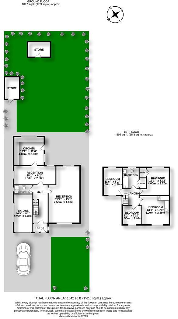
Discover your ideal family sanctuary in this deceptive yet spacious detached home on Dibbinsdale Road. Offering a generous 2,118 square feet of living space, this property showcases a well-lit dual-aspect lounge and dining area that leads seamlessly into a modern, extended kitchen—perfect for entertaining or family dinners. With four bedrooms, including three doubles, and a family bathroom featuring a three-piece suite, there’s ample room for comfort and personal space.

Step outside to a large, beautifully landscaped garden where you'll find a tranquil pond, mature borders, and additional brick-built structures ideal for storage or a garden room. The garage provides convenient parking, and the property benefits from an excellent mobile signal and fast broadband, catering to modern family needs.

Set in a predominately residential area within a highly-rated school district, this house is an excellent choice for families. Note that the area is highly sought after, so act quickly to secure your viewing!

Property Details

Brochure Descriptions

Image Descriptions

Floorplan Description

Rooms

Textual Property Features

Detected Visual Features

EPC Details

Nearby Schools

Nearest Bars And Restaurants

,,,,}

Nearest General Shops

,,}

Nearest Grocery shops

,,}

Nearest Supermarkets

,,}

Nearest Religious buildings

,,}

Nearest Medical buildings

,,,}

Nearest Airports

}

Nearest Leisure Facilities

,,,,}

Nearest Tourist attractions

,,}

Nearest Train stations

,,,,}

Nearest Bus stations and stops

,,,,}

Nearest Hotels

,,}

Tags

Local Market Stats

Similar Properties

Meta

High Res Images

Compatible Images

Low res Images

Thumbnails

Raw Images

High Res Floorplan Images

Compatible Floorplan Images

Low res Floorplan Images

FloorplanImages Thumbnail

Raw Floorplan Images