Low-maintenance three-bedroom home with garage, driveway and new-build warranty.
Three double bedrooms; master with ensuite
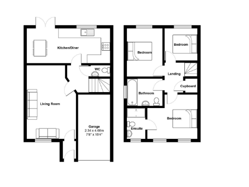
A modern three-bedroom semi-detached house on Haywood Village offering straightforward family living or a first-time-buyer step up. The layout includes a large living room, an open kitchen/diner, three double bedrooms (master with ensuite) and a practical family bathroom. An integral garage and private driveway add secure parking and extra storage, while the landscaped rear garden creates a low-maintenance outdoor space for children or entertaining.
The home was built within the last ten years and remains covered by its new-home warranty, reducing short-term maintenance risk. Heating is gas-fired with a boiler and radiators; walls have average thermal performance. At about 861 sq ft the house is well-proportioned for its price band and the council tax band is described as affordable.
Location is a clear selling point for families: multiple good and outstanding primary and secondary schools are nearby and local shops and amenities are accessible. However, the wider area shows signs of deprivation and the local classification indicates a higher proportion of constrained renters — factors to consider for long-term resale or rental prospects. Crime is average for the area.
This property suits a first-time buyer or growing family seeking a modern, low-maintenance home with parking and garden space, plus the reassurance of a recent build warranty. Buyers seeking a very affluent neighbourhood or strong immediate rental premium should weigh local area indicators when deciding to view.
3 bedroom semi-detached house for sale in Dragonfly Walk, Weston-Super-Mare - WELL PRESENTED, BS24 — £265,000 • 3 bed • 2 bath • 742 ft²
3 bedroom detached house for sale in Mosquito End, Weston-Super-Mare - SPACIOUS DETACHED HOME, BS24 — £324,995 • 3 bed • 2 bath • 954 ft²
3 bedroom detached house for sale in Tiger Moth Road, Weston-Super-Mare - CORNER PLOT WITH GARAGE, BS24 — £315,000 • 3 bed • 2 bath • 1075 ft²
3 bedroom semi-detached house for sale in Cobham Parade, Haywood Village - 3 DOUBLE BEDROOMS, BS24 — £279,000 • 3 bed • 2 bath • 1060 ft²
3 bedroom semi-detached house for sale in Nimbus Road, Weston-Super-Mare - SPACIOUS SEMI, BS24 — £280,000 • 3 bed • 2 bath • 362 ft²
3 bedroom end of terrace house for sale in Cherokee Road, Weston-super-Mare - NO ONWARD CHAIN, BS24 — £265,000 • 3 bed • 2 bath • 834 ft²


































































