Well-presented, practical 3-bed terraced home ideal for first-time buyers.
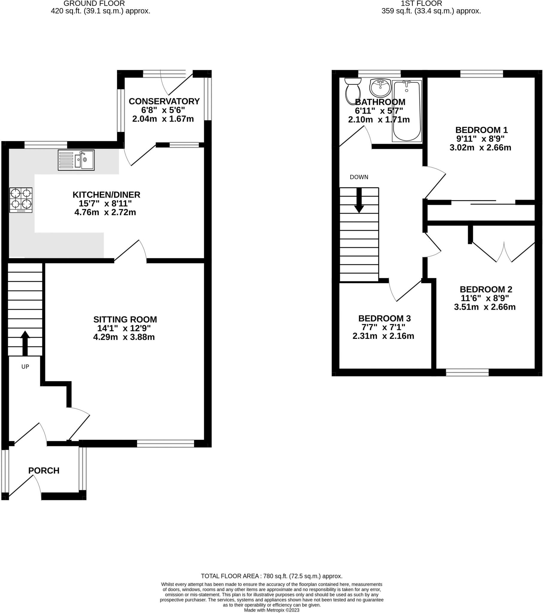
Freehold three-bedroom terraced house, approx. 780 sq ft
A neatly presented three-bedroom terraced home in South Worle, priced below £250,000 and ideal for first-time buyers seeking practical space and good transport links. The house has been recently refreshed with a smart bathroom, UPVC double glazing and gas central heating, so it’s ready to move into without major works.
The layout includes an entrance porch, sitting room with bay window, a generous kitchen/dining room and a useful rear porch leading to an enclosed, low-maintenance garden. Two double bedrooms and a single bedroom provide flexible sleeping or home-working space, and a single garage in a nearby block adds secure parking and storage.
Notable positives are the freehold tenure, low flood risk, fast broadband availability and an affordable council tax band B. The property sits close to local shops, bus and train services and the motorway, making it practical for commuters.
Be aware this is a modestly sized home (approx. 780 sq ft) on a small plot with one bathroom, so families wanting larger living areas or additional bathrooms may find it limiting. The nearby primary and secondary schools range in Ofsted ratings, so check individual school performance if that’s a priority.
3 bedroom terraced house for sale in Silverberry Road, Worle, BS22 — £274,000 • 3 bed • 1 bath • 622 ft²
3 bedroom semi-detached house for sale in Coralberry Drive, Worle - CORNER PLOT , BS22 — £310,000 • 3 bed • 1 bath • 765 ft²
3 bedroom semi-detached house for sale in New Bristol Road, Worle, BS22 — £300,000 • 3 bed • 2 bath • 885 ft²
3 bedroom house for sale in Mead Vale, Weston-super-Mare, Somerset, BS22 — £280,000 • 3 bed • 2 bath • 944 ft²
3 bedroom end of terrace house for sale in Marlborough Drive, Weston-Super-Mare, BS22 — £260,000 • 3 bed • 2 bath • 804 ft²
3 bedroom semi-detached house for sale in Cormorant Close, Worle - SUPERB SEMI , BS22 — £285,000 • 3 bed • 2 bath • 1049 ft²






























































