**Standout Features:**
- No onward chain for a quick purchase
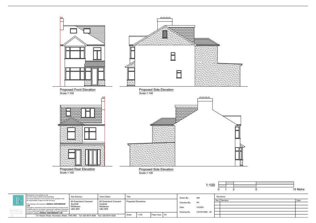
- Approved planning permission for significant extensions and conversion into two self-contained flats
- Three spacious bedrooms and two reception rooms
- Rear garden with side gated access; potential for off-street parking in the front garden
- Excellent transport links and nearby amenities
This charming end-of-terrace property offers a golden opportunity for both families and investors, boasting an attractive location and approved planning permissions for expansion and conversion into two separate flats. Currently featuring three well-proportioned bedrooms, a functional kitchen, and cozy living spaces, it’s perfectly suited for family living while providing ample room for future renovations. The rear garden and the front garden have the potential for off-street parking, enhancing the property's convenience. Set in a vibrant area close to Southall King Street’s amenities—including shops, restaurants, and transport links—this home is also within the catchment of reputable local schools, making it ideal for families.
While the property does present opportunities for modernizing—such as redecoration in bedrooms and potential upgrades to the insulation—it remains a lovely blank canvas for new owners to infuse their style. Don’t miss this chance to secure a home with great potential in a rapidly developing community, especially with no chain and planning permissions already in place. Act quickly; this unique opportunity may not last long!
3 bedroom end of terrace house for sale in Lonsdale Road, Southall, UB2 — £530,000 • 3 bed • 2 bath • 915 ft²
3 bedroom terraced house for sale in Wentworth Road, Southall, UB2 — £599,950 • 3 bed • 2 bath • 823 ft²
3 bedroom terraced house for sale in Kingsbridge Road, Norwood Green, UB2 — £565,000 • 3 bed • 2 bath • 1178 ft²
3 bedroom semi-detached house for sale in Ringway, Norwood Green, UB2 — £515,000 • 3 bed • 1 bath • 941 ft²
3 bedroom terraced house for sale in Westbury Avenue, Southall, UB1 — £499,950 • 3 bed • 2 bath • 1126 ft²
2 bedroom end of terrace house for sale in Manaton Crescent, Southall, UB1 — £515,000 • 2 bed • 1 bath • 1038 ft²










































