Large plot with double garage, conservatory and excellent schools nearby — move in with no upward chain.
Detached four-bedroom home with study/ground-floor bedroom option
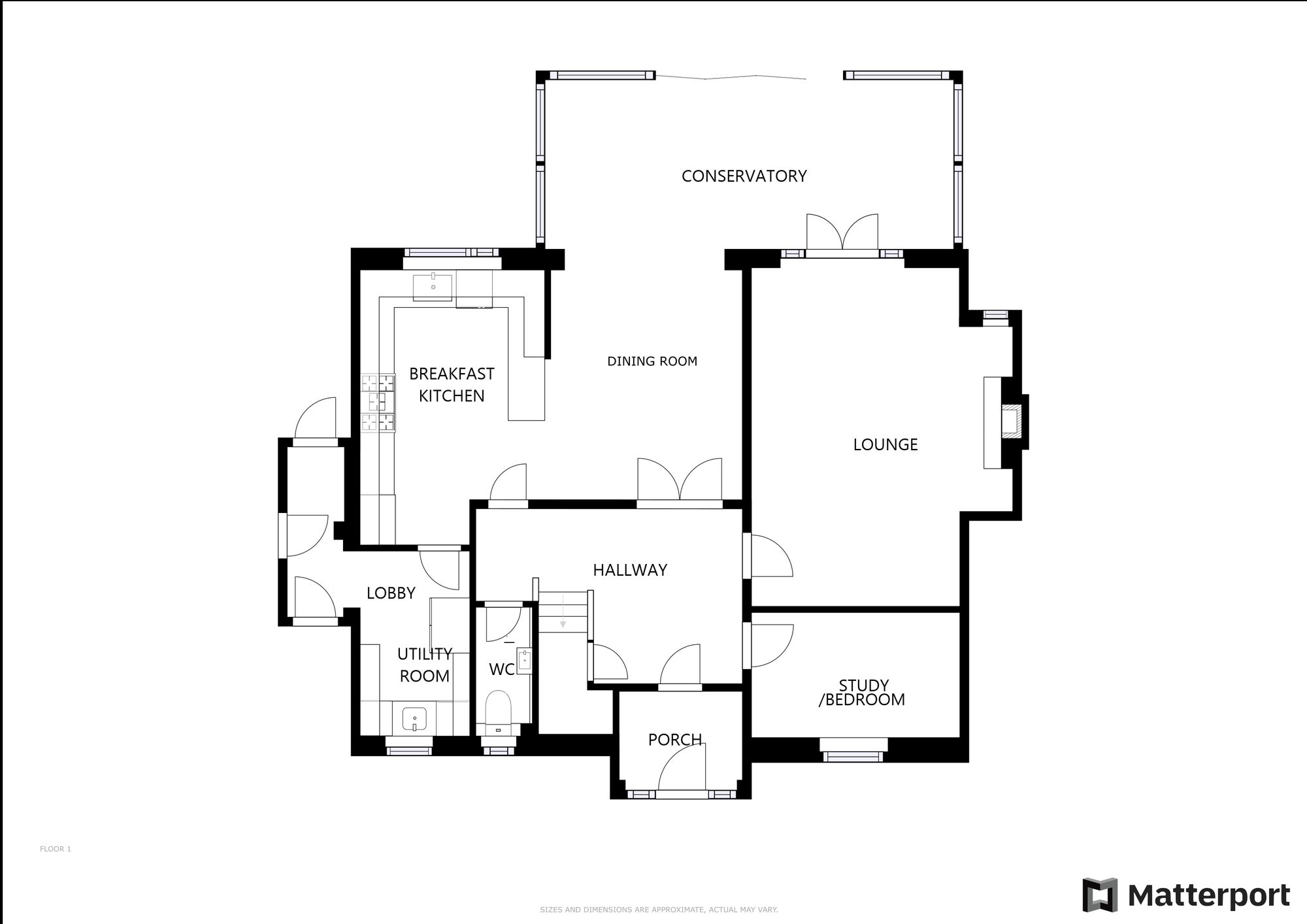
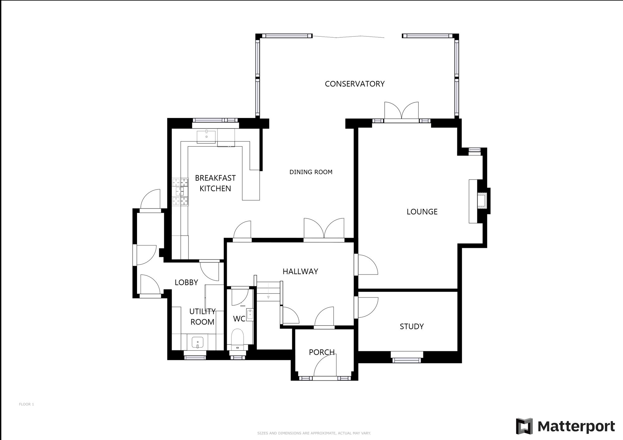
Set on a generous plot in a popular village location, this detached four-bedroom property offers versatile accommodation across two floors and immediate availability with no upward chain. A welcoming galleried landing and open entrance hall create a sense of flow, while the conservatory and large living room bring abundant natural light to family living spaces.
The ground floor includes a study that can serve as a fourth bedroom, a dining room opening to the conservatory, breakfast kitchen, utility and a ground floor WC. On the first floor the principal bedroom benefits from a walk-in wardrobe and en-suite; two further bedrooms and a family bathroom complete the sleeping accommodation. Practical features include a double garage, driveway parking and low-maintenance front and rear gardens.
This home is suitable for families seeking good local schools and village amenities, with Leicester conveniences and rolling Leicestershire countryside close by. Note the property dates from the late 1970s/early 1980s, has double glazing installed before 2002 and an EPC rating of D. Council tax is described as expensive and broadband speeds are average, which may be relevant for home working or high-bandwidth needs.
Overall the house presents substantial family space and parking on a large plot, with scope to personalise or modernise some elements. Buyers seeking a ready-to-move-in, well-arranged family residence in an affluent, commuter-friendly area should consider a viewing.
4 bedroom detached house for sale in Wych Elm Road, Oadby, Leicester, LE2 — £350,000 • 4 bed • 1 bath • 1055 ft²
4 bedroom detached house for sale in Quinton Rise, Oadby, Leicester, Leicestershire, LE2 — £440,000 • 4 bed • 2 bath • 1529 ft²
4 bedroom detached house for sale in Tollgate Close, Oadby, LE2 — £550,000 • 4 bed • 2 bath • 1336 ft²
4 bedroom detached house for sale in Half Moon Crescent, Oadby, Leicester, LE2 — £675,000 • 4 bed • 1 bath • 2355 ft²
4 bedroom detached house for sale in Berkeley Close, Oadby, Leicester, LE2 — £425,000 • 4 bed • 1 bath • 1033 ft²
4 bedroom detached house for sale in Tollgate Close, Cottage Farm, Oadby, LE2 — £550,000 • 4 bed • 2 bath • 1410 ft²


































































































































































