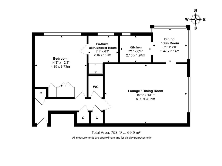
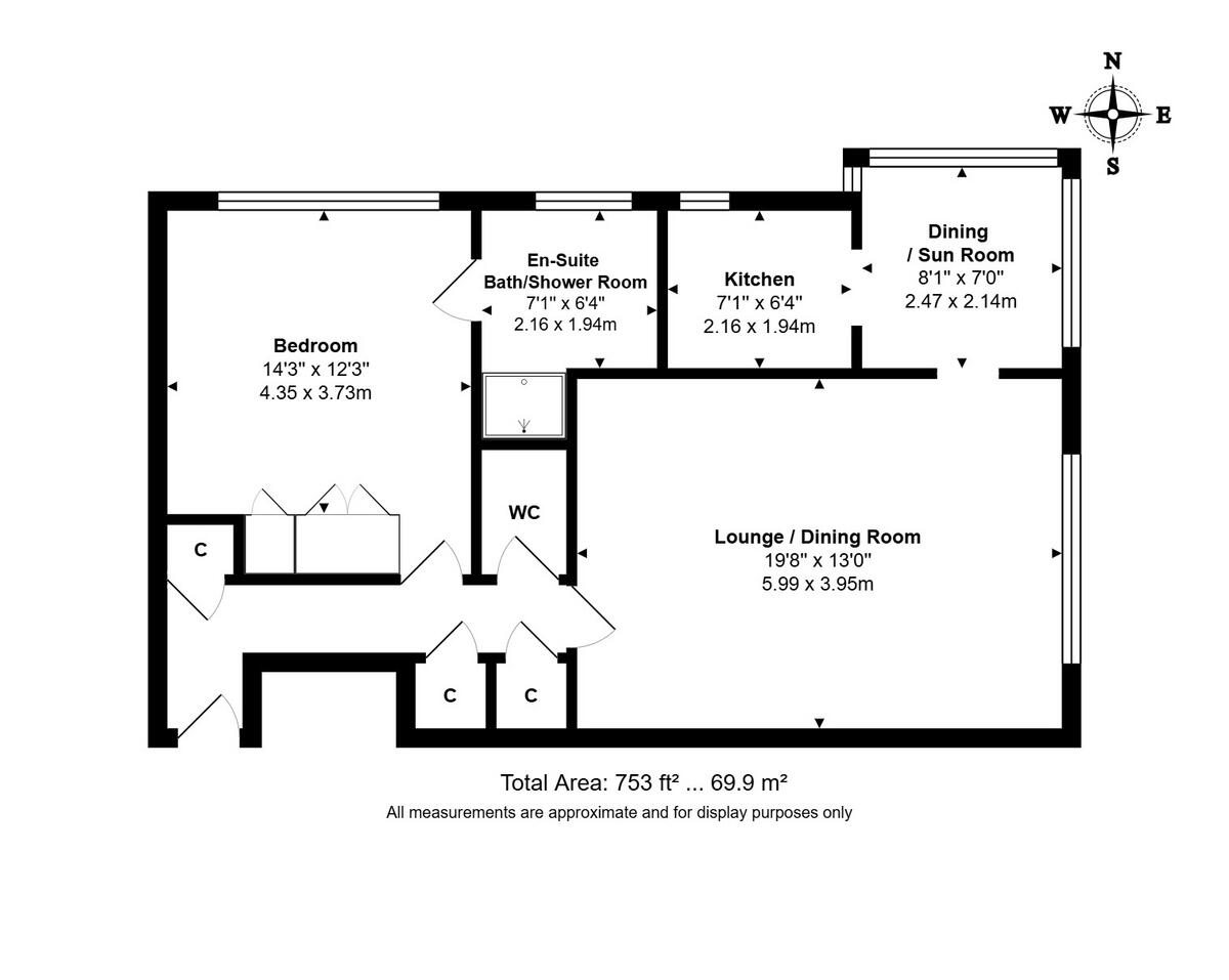
**Standout Features:**
- Spacious sixth-floor apartment, 754 Sq.Ft (69 Sq.M)
- Generous 19'8" x 13' lounge with stunning panoramic views
- En-suite double bedroom with built-in storage
- Functional separate kitchen and additional dining area
- Non-allocated off-street parking
- Excellent decorative condition with double glazing
- Prime location near amenities and Hove's seafront
**Summary:**
Welcome to a remarkable sixth-floor apartment in the desirable Wilbury Lodge, situated in the vibrant heart of Hove. This spacious 754 Sq.Ft home features a bright 19' lounge with captivating views of Hove’s rooftops, Sussex County Cricket Ground, and the picturesque South Downs. Perfect for professionals or couples, the sizable double bedroom boasts an en-suite bath/shower room and built-in storage, complemented by a separate WC for guests' convenience.
The enclosed balcony serves as a charming dining area, seamlessly extending your living space. With a separate kitchen designed for functionality, double glazing, and communal heating, this apartment is both comfortable and stylish. Parking is available off-street on a first-come, first-served basis. Positioned conveniently near shops, restaurants, Hove Station, and the seafront, this property is ideal for anyone seeking a blend of city living and scenic views. Don’t miss your chance to explore this exceptional opportunity—viewings are a must to truly appreciate all it has to offer!
2 bedroom flat for sale in Wilbury Road, Hove, BN3 3PA, BN3 — £325,000 • 2 bed • 1 bath • 872 ft²
2 bedroom apartment for sale in Cornwall Court, Wilbury Avenue, BN3 6GJ, BN3 — £300,000 • 2 bed • 1 bath • 660 ft²
1 bedroom apartment for sale in Ashdown, Eaton Road, BN3 — £250,000 • 1 bed • 1 bath • 655 ft²
1 bedroom flat for sale in Selborne Road, Hove, East Sussex, BN3 — £375,000 • 1 bed • 1 bath • 687 ft²
3 bedroom apartment for sale in Wilbury Grange, Wilbury Road, Hove, BN3 — £450,000 • 3 bed • 1 bath • 752 ft²
1 bedroom apartment for sale in The Drive, Hove, BN3 — £285,000 • 1 bed • 1 bath • 646 ft²


















































