Spacious period house with huge west-facing garden and excellent transport links.
Grade II-listed Georgian mid-terrace, built before 1900
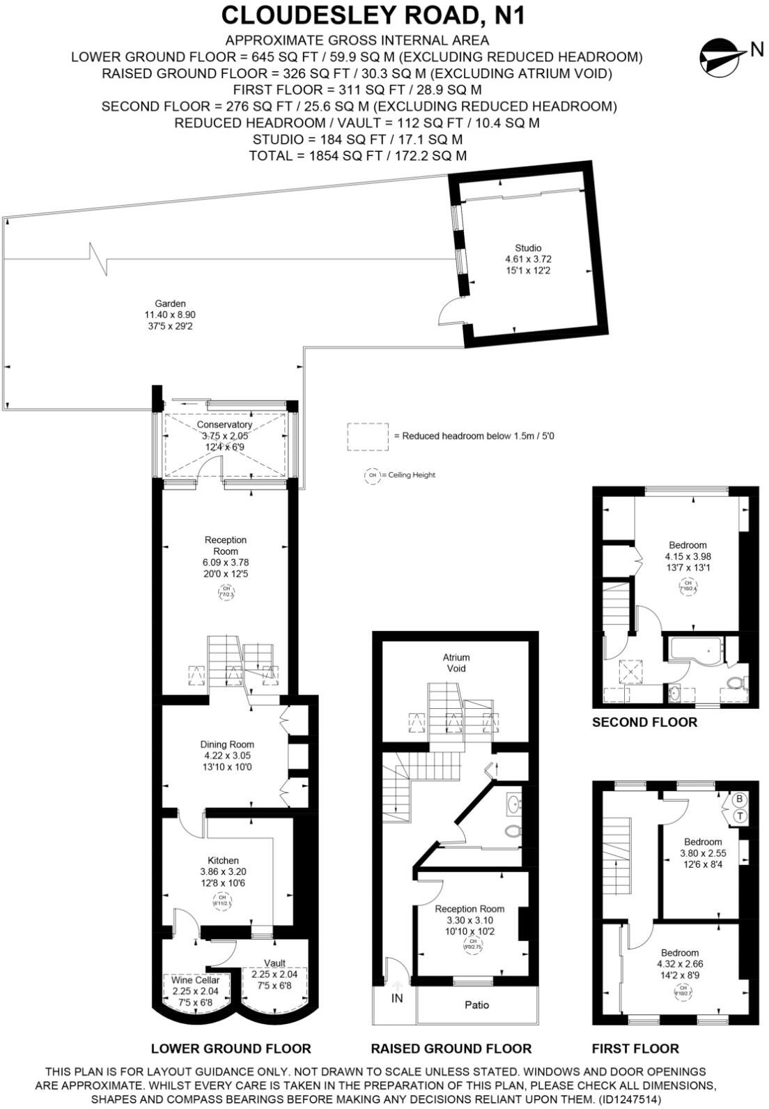
A gracious Grade II-listed Georgian mid-terrace offering generous family living across multiple floors. The house totals approximately 1,854 sq ft, with three double bedrooms, a large reception, and a contemporary conservatory overlooking an exceptionally private west-facing garden (about 55ft x 37ft) with a powered summer house and covered seating area.
The lower ground floor accommodates a practical family kitchen with access to a wine cellar and storage vault, plus a mixed-use dining/sitting room with a gas fireplace. The layout suits family life, with the main reception opening onto the garden and light-filled upper floors providing comfortable sleeping accommodation. Chain free sale simplifies the purchase timetable.
Important practical points: the property’s listed status and placement in the Barnsbury Conservation Area will limit structural and external alterations and may complicate consent for major works. The building is of solid brick construction with no assumed cavity insulation; upgrading thermal performance and wiring may be required to meet modern standards. There is one family bathroom only, which may be a consideration for some buyers.
Set in an enviable Barnsbury location, the house is well placed for excellent transport links (Angel, Highbury & Islington), reputable local schools, and Upper Street amenities. This is a characterful family home with significant outdoor space and renovation potential, best suited to buyers who value period charm, privacy, and central convenience while accepting conservation constraints and some retrofit work.
4 bedroom terraced house for sale in Cloudesley Road, Barnsbury, N1 — £1,800,000 • 4 bed • 2 bath • 1510 ft²
4 bedroom terraced house for sale in Barnsbury Road, Islington, London, N1 — £2,800,000 • 4 bed • 3 bath • 1937 ft²
4 bedroom terraced house for sale in Barnsbury Street,
Barnsbury, N1 — £3,500,000 • 4 bed • 3 bath • 2548 ft²
3 bedroom terraced house for sale in Theberton Street, Barnsbury, London, N1 — £3,000,000 • 3 bed • 3 bath • 2145 ft²
3 bedroom terraced house for sale in Bromfield Street,
Angel, N1 — £2,000,000 • 3 bed • 2 bath • 1845 ft²
3 bedroom house for sale in Cloudesley Road, Islington, N1 — £1,700,000 • 3 bed • 2 bath • 1713 ft²


























































































































