Large multi-unit period property with clear refurbishment upside for income growth.
Ten-bedroom Victorian semi-detached property across three titles (flexible split)
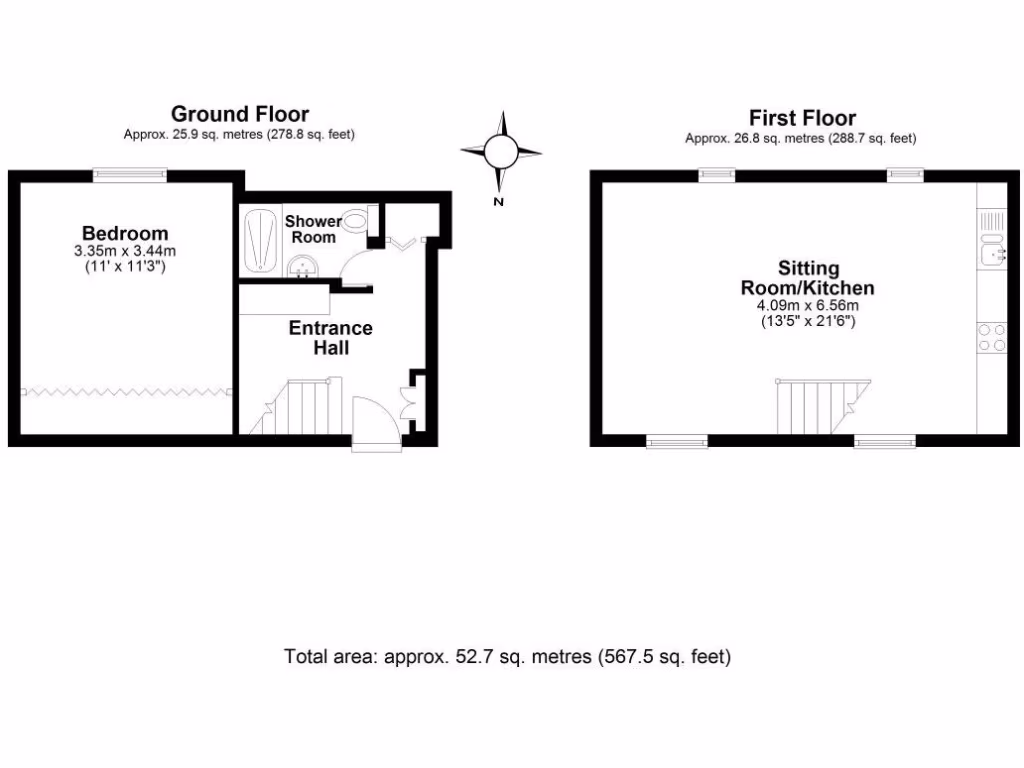
A substantial Victorian semi-detached property offered for sale by public auction as three separate titles, ideal for investors or developers seeking a multi-unit income stream. The building currently houses a collection of self-contained flats, cottages and an annex across multiple floors, plus a garage block; total footprint is modest but offers around 1,523 sq ft per the schedule and roughly 30 rooms in total. The freehold includes separately metered gas and electricity for most units and an established current rental income with clear scope to increase yields after refurbishment.
The lots present immediate rental income (current £31,920 pa) with estimated market rent nearer £40,000 pa plus potential extra income from garages. Each unit is self-contained and separately accessed, so the property can be retained as an investment, split and sold individually, or refurbished and re-let to increase values. The accommodation ranges from one- to multi-bedroom flats and an annex; garages and yards add practical amenity and scope for alternate uses.
Buyers should note this is a fixer-upper with refurbishment required to realise uplift. Water is supplied from a single source to all units, and there is only one bathroom listed for the whole building mix in places — further upgrade work may be needed. Flood risk is described as medium and the sale is subject to an auction process with a public notice/repossession statement, so buyers must complete appropriate due diligence and factor auction timelines and reserve conditions into their plans.
Location benefits from proximity to local shops, healthcare and multiple good-rated schools, transport links in Newton Abbot and an established residential catchment. The site’s three-title structure, separate meters and garage block provide flexibility for phased works or resale, making this a practical project for experienced buy-to-let investors or small-scale developers willing to manage refurbishment and regulatory checks.
10 bedroom semi-detached house for sale in 51 Gestridge Road, Kingsteignton, Newton Abbot, Devon, TQ12 3EZ, TQ12 — £450,000 • 10 bed • 1 bath • 1523 ft²
Commercial property for sale in Auction Lot: 3 cottages & 2 Flats, Kingsteignton, Newton Abbot , Kingsteignton, Devon, TQ12 — £475,000 • 1 bed • 1 bath
3 bedroom detached house for sale in 51 Old Exeter Road, Newton Abbot, Devon, TQ12 — £235,000 • 3 bed • 1 bath
4 bedroom semi-detached house for sale in Powderham Road, Newton Abbot, TQ12 1EU, TQ12 — £475,000 • 4 bed • 3 bath • 1754 ft²
3 bedroom semi-detached house for sale in Silverwood Avenue, Newton Abbot, Devon, TQ12 — £235,000 • 3 bed • 1 bath
Commercial property for sale in Auction Lot: 7 x Bedroom HMO, plus 2 x Self-Contained Flats, Totnes, Devon, TQ9 — £500,000 • 1 bed • 1 bath










































































































































