**Key Features:**
- Large building plot in the rural village of Turves
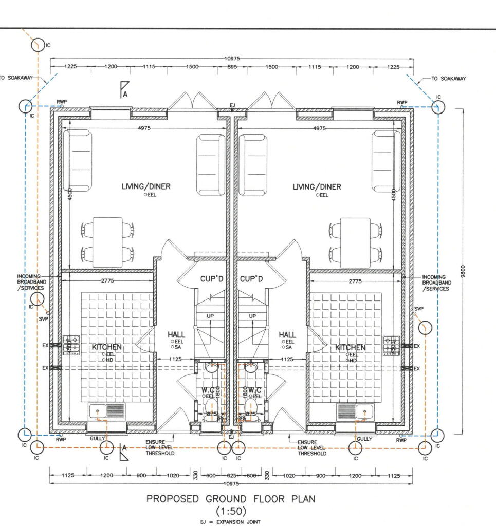
- Full planning consent for two 3-bedroom semi-detached houses
- Tranquil countryside views with potential for expansive gardens
- Local amenities within walking distance, including a pub and post box
- Freehold tenure, offering flexibility for future developments
This substantial land parcel in the charming village of Turves is an ideal opportunity for developers or families looking to invest in their dream home. With full planning permission already granted for two 3-bedroom semi-detached houses, this site is primed for immediate development. The tranquil surroundings provide a serene lifestyle, enhanced by picturesque countryside views and the potential for large outdoor spaces upon completion.
This property is perfectly positioned, approximately 3.5 miles from Whittlesey, offering both a peaceful rural retreat and convenient access to local amenities, including a pub and community services. While the plot will require the new owner to handle boundary fencing, the investment potential here is significant, making it a compelling choice for both seasoned developers and first-time buyers with ambitions to build their ideal home. Don’t miss out on this exclusive opportunity—land parcels like this are a rare find!
Land for sale in Whittlesey Road, Turves, March, PE15 — £135,000 • 1 bed • 1 bath
Land for sale in Whittlesey Road, Turves, March, PE15 — £135,000 • 1 bed • 1 bath
Land for sale in Flaggrass Hill Road, March, PE15 — £250,000 • 1 bed • 1 bath
Land for sale in Burrowmoor Road, March, PE15 — £135,000 • 1 bed • 1 bath • 4058 ft²
Land for sale in Eastwood End, Wimblington, March., PE15 0QQ, PE15 — £850,000 • 1 bed • 1 bath
Plot for sale in Woodhouse Farm Close, Friday Bridge, Wisbech, PE14 — £110,000 • 1 bed • 1 bath


























