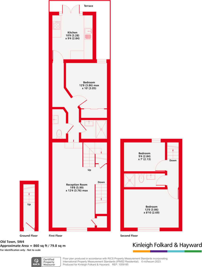
**Standout Features:**
- Three spacious double bedrooms
- Two bathrooms
- Split-level layout with contemporary living space
- Approximately 860 sq. ft.
- Private terrace ideal for outdoor relaxation
- Prime location near Clapham Common and local amenities
- Excellent broadband and mobile signal
- Strong school choices nearby with 'Good' and 'Outstanding' ratings
**Potential Concerns:**
- Mid-terrace property in a highly urbanized area with high crime rates
- Leasehold tenure may require future financial planning
- Solid brick walls without insulation could impact energy efficiency
Discover a delightful blend of comfort and convenience in this well-presented split-level flat located in desirable Clapham Old Town. Spanning approximately 860 sq. ft., this charming residence features three generous double bedrooms and two bathrooms, making it perfect for families or professionals seeking ample living space. The bright and spacious living room seamlessly flows into a separate kitchen, while the private terrace offers a tranquil outdoor retreat.
Positioned just moments from the lush greenery of Clapham Common, enjoy the vibrancy of urban living with a rich array of local amenities, including shops, cafes, and efficient transport links. Families will appreciate the 'Good' to ‘Outstanding’ rated schools within easy reach, enhancing the property’s appeal. While boasting an enviable location, potential buyers should consider the leasehold aspect and historical building features. With excellent broadband speeds and strong mobile signals, this property is perfect for modern living. Schedule a viewing today to secure your future in this highly sought-after area!
3 bedroom apartment for sale in Porteus Place, London, SW4 — £1,100,000 • 3 bed • 3 bath • 1193 ft²
3 bedroom flat for sale in Chatto Road, Battersea, London, SW11 — £900,000 • 3 bed • 1 bath • 1070 ft²
3 bedroom apartment for sale in Venn Street, London, UK, SW4 — £750,000 • 3 bed • 1 bath • 793 ft²
3 bedroom apartment for sale in Old Town, London, SW4 — £875,000 • 3 bed • 1 bath • 1114 ft²
3 bedroom flat for sale in Union Road, London, SW4 — £600,000 • 3 bed • 1 bath • 962 ft²
2 bedroom apartment for sale in The Chase, Clapham, SW4 — £850,000 • 2 bed • 1 bath • 1186 ft²














































