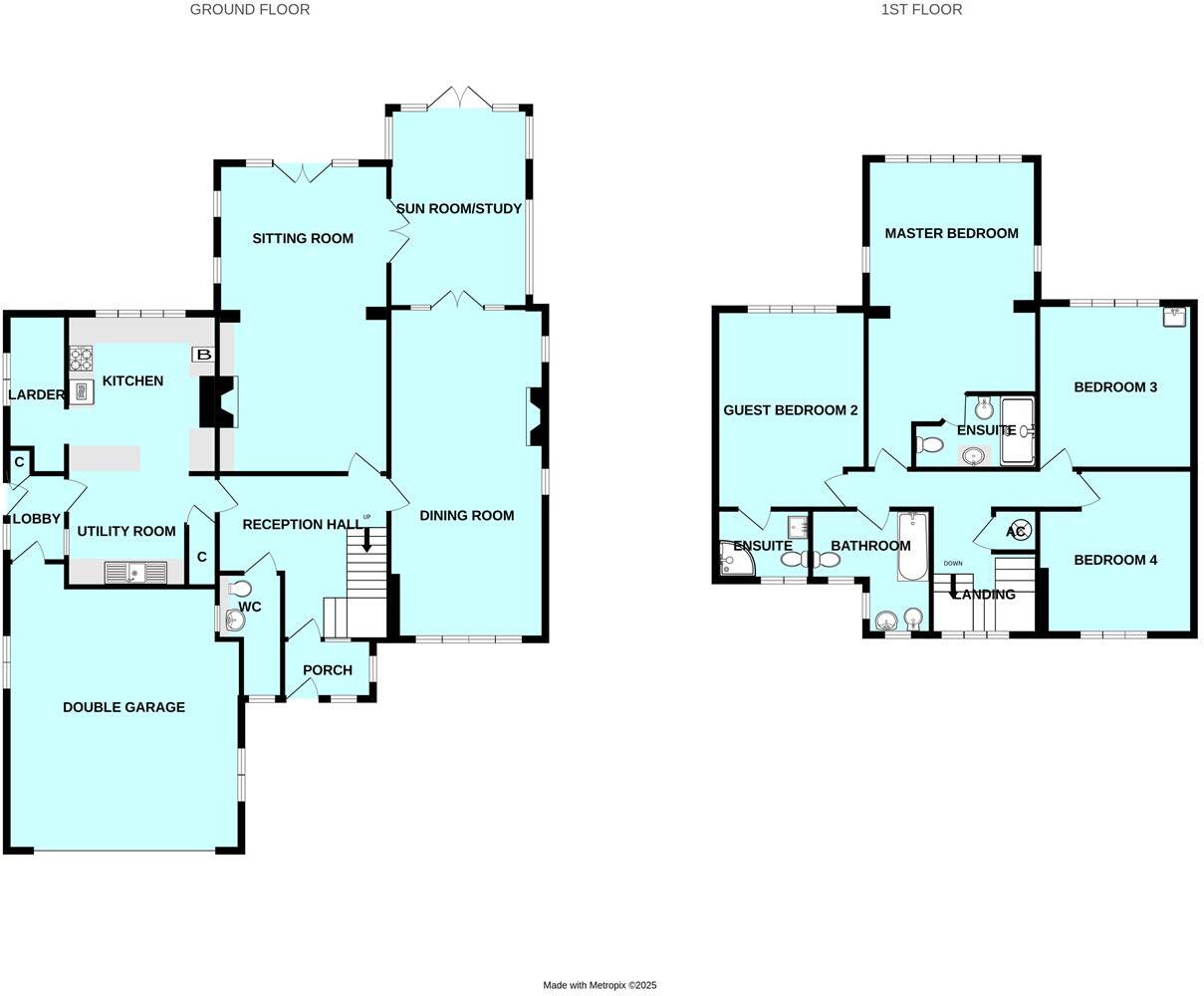
**Standout Features:**
- Large detached residence built in 1935
- Expansive plot with a long, mature enclosed rear garden
- Spacious interior with four double bedrooms, including two en-suites
- Generous living spaces: 24ft sitting room, 25ft dining room, sun room/study
- Modern amenities including an integrated kitchen and utility room
- Large attached double garage and off-street parking
- Prime location in the desirable Hartley area with excellent amenities nearby
**Concise Property Summary:**
This impressive detached home on Lockington Avenue offers ample space and potential for family living. The property has been well-maintained, featuring significant renovations such as a new roof and modern gas boiler. Inside, you’ll find a spacious layout, with four double bedrooms—two with en-suite facilities—alongside a large family bathroom. The ground floor boasts a 24ft sitting room with a charming fireplace, a generous dining room, and a sun room or study, ensuring versatile spaces for family activities or relaxation.
The exterior does not disappoint either, with a delightful long garden complete with a patio, kitchen garden, and substantial outbuildings. The double garage provides both storage and parking, while good off-street parking is available at the front. Located within an affluent area, this property is perfect for families seeking a peaceful suburban lifestyle while remaining conveniently close to local schools and amenities. With such expansive grounds and a solid structure, this home presents immense potential for personalization or future extensions. Don’t miss out on this unique opportunity—properties like this in the Hartley area are in high demand!
4 bedroom semi-detached house for sale in Hartley, Plymouth, PL3 — £475,000 • 4 bed • 2 bath • 4274 ft²
4 bedroom link detached house for sale in Lockington Avenue, Hartley, Plymouth, PL3 — £400,000 • 4 bed • 2 bath • 1468 ft²
4 bedroom detached house for sale in Glentor Road, Plymouth, PL3 — £650,000 • 4 bed • 2 bath • 1497 ft²
4 bedroom detached house for sale in Hartley, Plymouth, PL3 — £550,000 • 4 bed • 2 bath • 1970 ft²
4 bedroom detached house for sale in Hartley, Plymouth, PL3 — £650,000 • 4 bed • 2 bath • 1647 ft²
4 bedroom semi-detached house for sale in Hartley, Plymouth, PL3 — £475,000 • 4 bed • 1 bath • 1742 ft²


























































































































































































