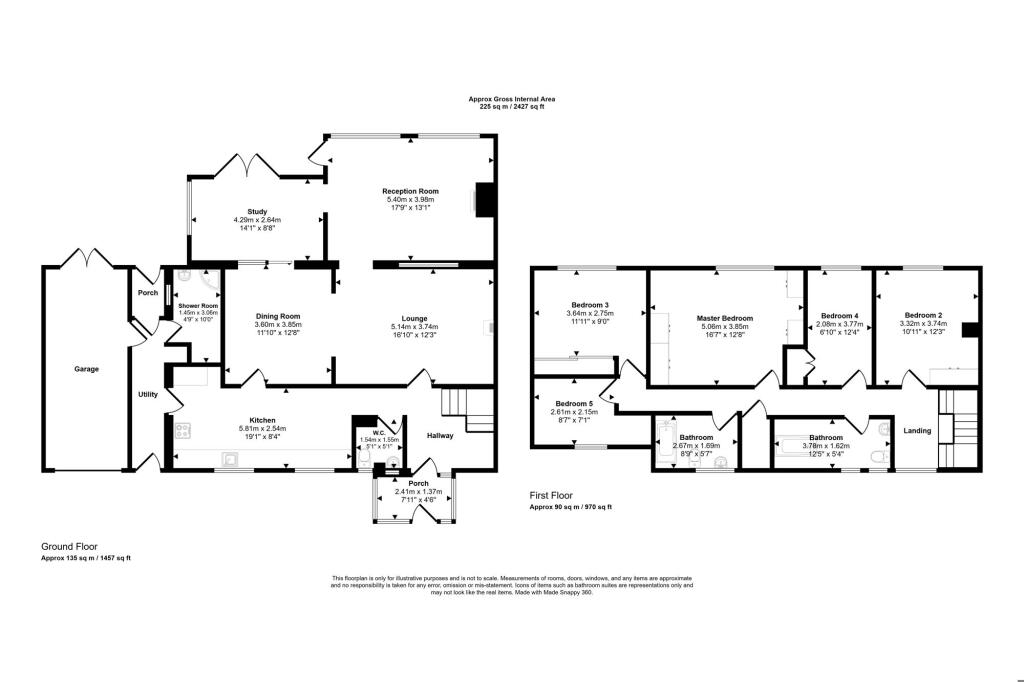
**Standout Features:**
- Five spacious bedrooms
- Four versatile reception rooms
- Large, easy-to-maintain rear garden
- Two bathrooms plus a downstairs shower room
- Driveway and garage
- Located in a sought-after village, Acklington
- Close proximity to good schools and local amenities
**Notable Considerations:**
- Average mobile signal and slow broadband speeds
- Potential need for updating insulation
Discover this inviting five-bedroom semi-detached home in the picturesque village of Acklington, perfectly tailored for families seeking comfort and space. This property boasts four reception rooms, including a contemporary living room with a fireplace, ensuring ample room for relaxation and entertainment. The modern kitchen, featuring built-in appliances, flows seamlessly into a separate dining area, ideal for family meals and gatherings.
Enjoy the expansive rear garden, perfect for outdoor activities or summer BBQs, while the loft area, equipped with fixed ladders, offers additional storage or potential for future renovations. With two well-appointed bathrooms, including a convenient downstairs shower room, your family's needs are comprehensively met.
Located within a vibrant community with access to good schools and nearby amenities, this home combines rural charm with practicality. While certain aspects, such as insulation and broadband connectivity, may require attention, the potential for customization adds to the charm.
Don't miss out on this exceptional opportunity—secure your dream home in Acklington today.
5 bedroom detached house for sale in Cheviot Meadows, Acklington, Northumberland, NE65 9FL, NE65 — £650,000 • 5 bed • 3 bath • 2709 ft²
5 bedroom detached house for sale in Cheviot Meadows, Acklington, Morpeth, NE65 — £700,000 • 5 bed • 3 bath • 2842 ft²
3 bedroom bungalow for sale in Field House Close, Acklington, NE65 — £330,000 • 3 bed • 2 bath • 865 ft²
3 bedroom detached bungalow for sale in The Village, Acklington , NE65 — £625,000 • 3 bed • 2 bath • 1874 ft²
4 bedroom detached house for sale in Paddock View, Acklington, Morpeth, Northumberland, NE65 — £440,000 • 4 bed • 2 bath • 1421 ft²
3 bedroom barn conversion for sale in Field House Farm, Acklington, Northumberland, NE65 — £415,000 • 3 bed • 1 bath • 1610 ft²






































































































