Refurbished four-bedroom home with annexe and large private garden in peaceful Nettlestone..
Stunning David Salisbury orangery-style open-plan kitchen/diner
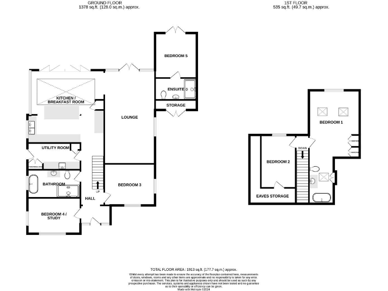
Set within a generous quarter-acre plot in Nettlestone, this refurbished four-bedroom detached home blends contemporary finishes with period character. The heart of the house is a David Salisbury orangery-style kitchen/diner with a large island, skylight and full-width bi-fold doors opening to a paved terrace and manicured gardens — ideal for family life and entertaining. A self-contained annexe bedroom and bathroom accessed from the garden offers versatile use as guest accommodation, home office or independent living space.
The property has been substantially upgraded: new heating and electrical systems, underfloor heating in parts, double glazing installed post-2002 and high-spec fittings including Miele appliances and John Lewis worktops. A large peaceful master suite with double Velux windows and an ensuite occupies the first floor, while ground-floor layout includes a study/snug that can serve as a fourth bedroom. Parking for up to three vehicles, two garden sheds and well-kept lawns with a central pond complete the outdoor offering.
Practical points to note: the house was built in the 1950s–60s and, despite recent refurbishment, buyers should review any remaining concealed maintenance typical of homes of this age. Council Tax sits above average (Band E) and the sale is subject to existing rights, easements and wayleaves. Broadband is up to 48 Mbps — generally good for rural locations but worth checking for specific household needs.
This home will suit families seeking a move-in ready property with flexible living arrangements and generous outdoor space in a quiet, prospering countryside setting. The annexe and sizeable plot also appeal to buyers wanting multi-generational accommodation or potential holiday-let income, subject to planning checks.
 4 bedroom detached house for sale in Rushclose, Shanklin, PO37 — £689,950 • 4 bed • 2 bath • 1852 ft²
 4 bedroom detached house for sale in Rushclose, Shanklin, PO37 — £689,950 • 4 bed • 2 bath • 1852 ft² 4 bedroom detached house for sale in Oaklands Close, Fishbourne, PO33 — £600,000 • 4 bed • 3 bath • 1631 ft²
 4 bedroom detached house for sale in Oaklands Close, Fishbourne, PO33 — £600,000 • 4 bed • 3 bath • 1631 ft² 3 bedroom detached house for sale in Seaview, PO34 5AS, PO34 — £750,000 • 3 bed • 2 bath • 807 ft²
 3 bedroom detached house for sale in Seaview, PO34 5AS, PO34 — £750,000 • 3 bed • 2 bath • 807 ft² 3 bedroom detached house for sale in Hutchinson Drive, Ryde, PO33 — £500,000 • 3 bed • 2 bath • 1615 ft²
 3 bedroom detached house for sale in Hutchinson Drive, Ryde, PO33 — £500,000 • 3 bed • 2 bath • 1615 ft² 4 bedroom detached house for sale in EXTREMELY WELL PRESENTED FAMILY HOME - Mallard Point, Northwood, Cowes, PO31 — £600,000 • 4 bed • 3 bath • 1942 ft²
 4 bedroom detached house for sale in EXTREMELY WELL PRESENTED FAMILY HOME - Mallard Point, Northwood, Cowes, PO31 — £600,000 • 4 bed • 3 bath • 1942 ft² 4 bedroom detached house for sale in STUNNING CONTEMPORARY HOME - Marlborough Road, Ryde, PO33 — £549,500 • 4 bed • 2 bath • 1693 ft²
 4 bedroom detached house for sale in STUNNING CONTEMPORARY HOME - Marlborough Road, Ryde, PO33 — £549,500 • 4 bed • 2 bath • 1693 ft²






























































































































