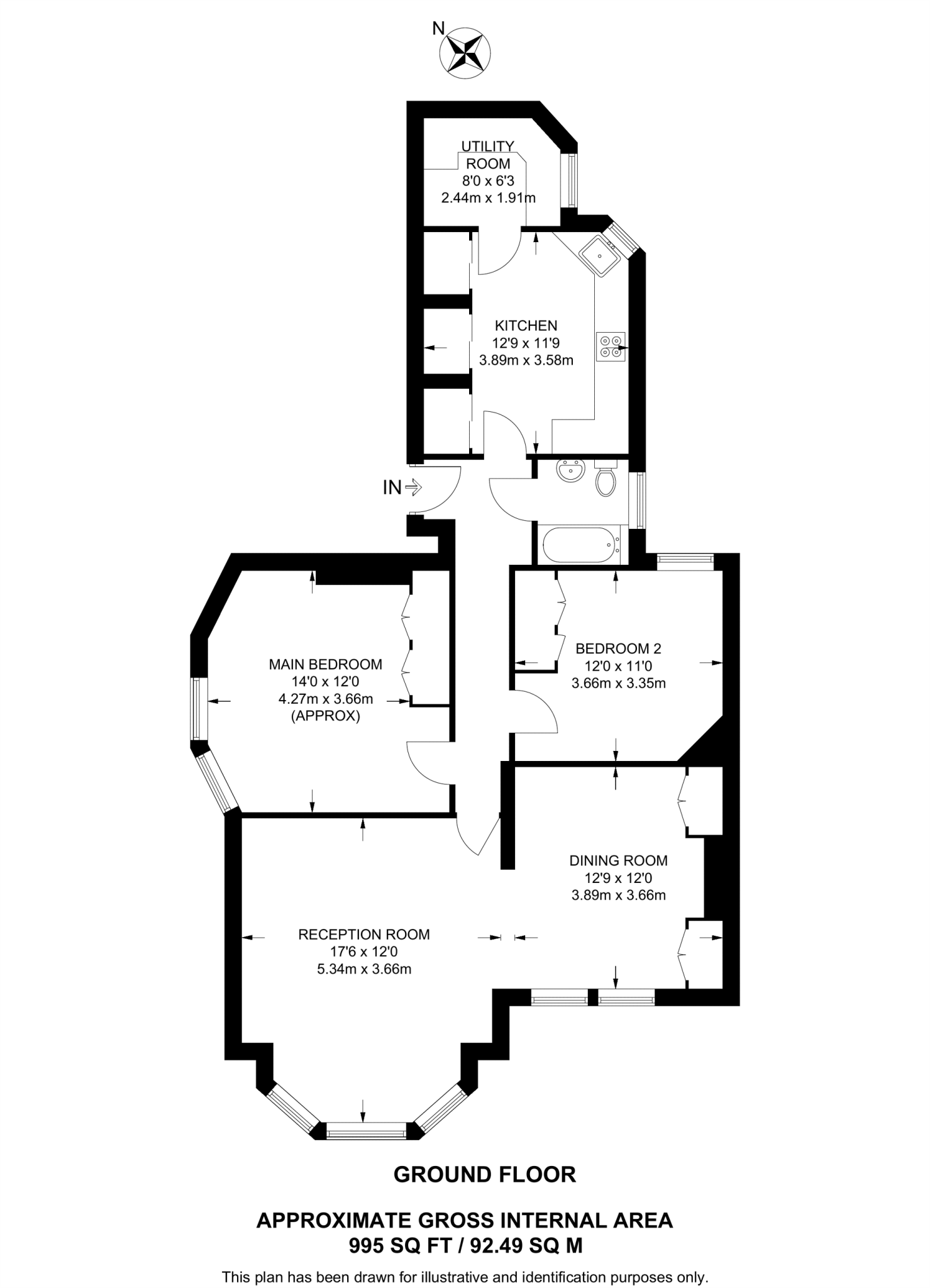
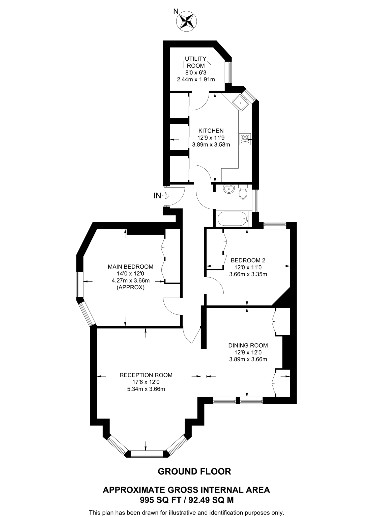
Spacious period two-bed with garden and tennis-court views in West Kensington..
West-facing raised ground-floor flat with garden and tennis court views
Large open-plan reception and dining room with bay window
Generous overall size: approximately 995 sq ft
Two bedrooms, one bathroom — single bathroom only
Ample storage throughout; traditional period features retained
Leasehold tenure — buyers should confirm lease length and charges
Solid brick walls likely without insulation — potential energy upgrade needed
Excellent broadband and mobile signal; easy road access from London
Set within the sought-after Queens Club Gardens, this raised ground-floor two-bedroom flat offers spacious, light-filled living across a generous 995 sq ft. The open-plan reception and dining room, large bay window and classic period details create an inviting living space that overlooks landscaped communal gardens and tennis courts — a rare green outlook in West Kensington.
Practical strengths include ample built-in storage, mains gas boiler heating and easy road access in and out of central London for motorists. The property sits in an affluent, inner-city area with strong local amenities, good schools nearby and fast broadband and excellent mobile signal — well suited to a professional family or buyer seeking a stylish central London home with outside space on the doorstep.
Buyers should note this is a leasehold flat with a single bathroom and traditional solid-brick construction likely without wall insulation, which may affect heating efficiency and future upgrade costs. As a raised ground-floor home it offers convenient access but check privacy and communal arrangements during viewing.
Overall this is a characterful period apartment with bright principal rooms and garden views, offering immediate comfort with scope for selective updating to improve energy efficiency and add value.
2 bedroom flat for sale in Queen's Club Gardens, London, W14 — £750,000 • 2 bed • 1 bath • 781 ft²
2 bedroom flat for sale in Queen's Club Gardens, West Kensington, W14 — £675,000 • 2 bed • 1 bath • 657 ft²
2 bedroom flat for sale in Gledstanes Road, West Kensington, London, W14 — £575,000 • 2 bed • 1 bath • 579 ft²
2 bedroom flat for sale in Quain Mansions,
Queen's Club Gardens, W14 — £575,000 • 2 bed • 1 bath • 613 ft²
3 bedroom apartment for sale in Queen's Club Gardens, London, W14 — £725,000 • 3 bed • 1 bath • 880 ft²
2 bedroom apartment for sale in St. Andrews Road, London, W14 — £850,000 • 2 bed • 2 bath • 1000 ft²






























































































































































