Cash-only auction chance for a high-yield refurbishment investment near transport links.
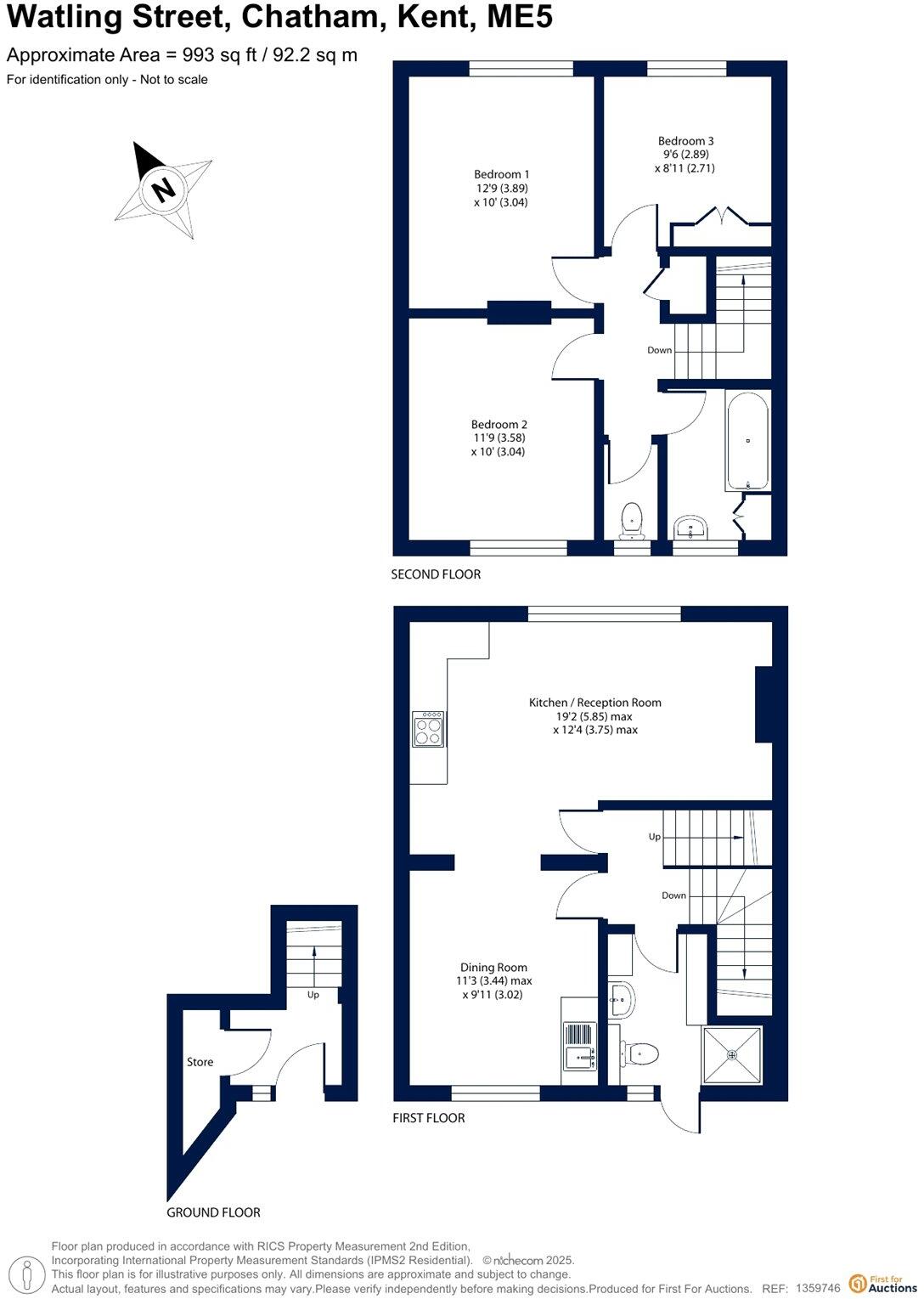
Split-level three-bedroom apartment, approx 993 sq ft
Sold by online auction — six-week completion, cash buyers only
Leasehold with ~58 years remaining — lending likely restricted
Requires full modernisation throughout; investment opportunity
Estimated rent £1,300–£1,400 pcm; gross yield ~15.6–16.8%
Double glazing present; mains gas boiler and radiators
Building exterior shows wear; property needs external maintenance
Local area higher crime rates; check safety and refurbishment costs
A vacant split-level three-bedroom apartment in central Chatham, offered for sale by online auction with a six-week completion. The property spans about 993 sq ft across two levels and sits close to Chatham town centre and the train station, so commuting and local amenities are within easy reach.
The apartment requires full modernisation but offers clear rental and owner-occupier potential; estimated rents of £1,300–£1,400 pcm suggest a gross yield around 15.6–16.8% if refurbished and let. Key features include double glazing, mains gas central heating with boiler and radiators, and a conventional mid-20th-century layout that could be updated to improve living space and value.
Important considerations: the lease has approximately 58 years remaining which may restrict mortgage availability and deter some buyers; this is a cash-only auction sale. The area records higher-than-average crime and the building exterior and internal fittings show signs of wear and neglect. Buyers should factor in renovation costs and check lease, service charges, and local safety or refurbishment requirements before bidding.
1 bedroom flat for sale in High Street, Chatham, Kent, ME4 — £100,000 • 1 bed • 1 bath • 405 ft²
3 bedroom end of terrace house for sale in 61 , Hartington Street, Chatham, Kent ME4 5PJ, ME4 — £155,000 • 3 bed • 1 bath • 765 ft²
2 bedroom flat for sale in 180 Luton Road, Chatham, Kent, ME4 5BP, ME4 — £60,000 • 2 bed • 1 bath
3 bedroom flat for sale in Melville Court, Chatham, Kent, ME4 — £150,000 • 3 bed • 2 bath • 925 ft²
2 bedroom flat for sale in New Road, Chatham, Kent, ME4 — £90,000 • 2 bed • 1 bath • 505 ft²
1 bedroom flat for sale in Chatham Grove, Chatham, Kent, ME4 — £115,000 • 1 bed • 1 bath • 463 ft²


















































