Spacious four-bedroom Edwardian home near Tile Hill station, chain-free and family-ready.
Edwardian semi-detached with period character
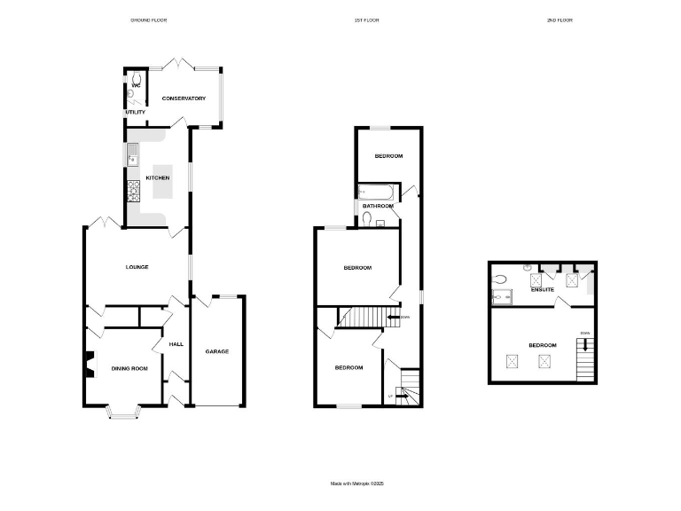
A generous Edwardian semi-detached home in Tile Hill Village, ideal for families seeking space and strong commuter links. The house combines original character with sensible modern updates — bay-window dining room, a contemporary fitted kitchen and double glazing — while retaining period charm throughout. Sold with no onward chain and driveway parking for multiple cars plus a garage, it’s ready for a quick move-in and offers scope to personalise further.
The ground floor flows well for family life: a formal dining room, a large living room with patio doors to an enclosed rear garden, conservatory, utility and cloakroom. Upstairs are three well-proportioned bedrooms and a family bathroom, with a small office/walkway leading to a second-floor master bedroom complete with dressing area and ensuite — excellent separation for parents and children.
Practical details suit everyday life: mains gas central heating, double glazing installed since 2002, a decent plot with mature borders, and proximity to Tile Hill train station for fast links to Coventry and Birmingham. Local schools are rated Good, and amenities are within walking distance.
Notable points to consider: the house is a circa 1900–1929 solid-brick build and is assumed to have no wall insulation, so further insulation improvements may be desirable for long-term running costs. The property shows a mix of modern and original finishes; buyers seeking a fully modernised turnkey home should allow for cosmetic updating in places. Council Tax band D applies.
3 bedroom detached house for sale in Tile Hill Lane, Coventry, CV4 — £425,000 • 3 bed • 2 bath • 1364 ft²
4 bedroom semi-detached house for sale in Duggins Lane, Tile Hill Village, Coventry, CV4 — £435,000 • 4 bed • 2 bath • 1626 ft²
4 bedroom detached house for sale in Station Avenue, Coventry, CV4 — £475,000 • 4 bed • 2 bath • 1841 ft²
4 bedroom semi-detached house for sale in Tile Hill Lane, Coventry, CV4 — £375,000 • 4 bed • 1 bath • 1453 ft²
4 bedroom semi-detached house for sale in Fir Tree Avenue, Coventry, CV4 — £300,000 • 4 bed • 2 bath • 978 ft²
3 bedroom house for sale in Hornbeam Drive, Tile Hill, Coventry, CV4 — £295,000 • 3 bed • 2 bath • 1000 ft²














































































