**Standout Features:**
- **Investment Potential:** Rare opportunity for a large mixed-use plot with possible development potential (subject to planning).
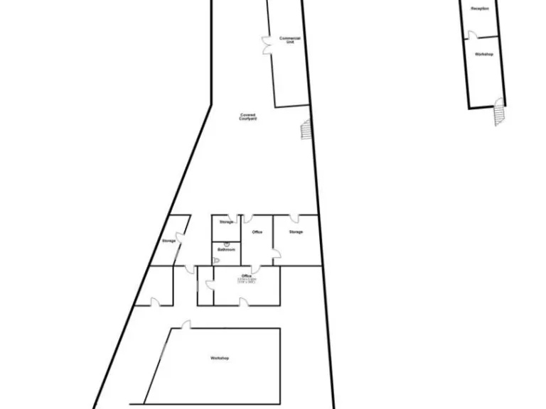
- **Spacious Layout:** Approximately 11,568.3 square feet, featuring various commercial spaces, including an art gallery, office, and substantial factory/storage area.
- **Prime Location:** Tucked behind Tooting High Street, providing excellent access to local amenities and transport options.
- **Versatile Use:** Currently configured for diverse uses—ideal for retail, office, or light industrial operations.
- **Freehold Tenure:** Offers greater control over future development or adaptations.
**Concerns:**
- **Condition:** Some areas may require updating or maintenance, particularly the factory/storage sections.
- **Crime Rate:** Notably high in the local area, which prospective buyers should consider.
This unique commercial plot on Totterdown Street is a rare find in the bustling suburb of Tooting, offering an impressive amount of space for adaptive use or redevelopment. With a current mix of retail and industrial units, including a hair salon and an art gallery, the property benefits from high visibility and significant vehicular access, making it well-suited for business operations. The potential for future development, subject to necessary planning permissions, adds an exciting element for investors looking to capitalize on the area’s growth.
Situated just behind Tooting’s high street, this location ensures easy access to numerous amenities and a vibrant community atmosphere. Ideal for savvy investors or enterprises seeking expansion opportunities, don’t miss out on this exceptional investment—seize the chance to enhance this property and tailor it to your vision before it's gone!
Plot for sale in Brightwell Crescent, Tooting, London SW17 — £600,000 • 1 bed • 1 bath • 1143 ft²
Plot for sale in R/O 916 Garratt Lane, Tooting, London SW17 — £235,000 • 1 bed • 1 bath • 968 ft²
Commercial property for sale in Streatham Vale, Streatham, SW16 — £1,000,000 • 1 bed • 1 bath • 1359 ft²
Leisure facility for sale in Tooting Tram & Social, 46-48 Mitcham Road, London, SW17 9NA, SW17 — POA • 1 bed • 1 bath • 6875 ft²
Industrial development for sale in Christchurch Road, Colliers Wood, London SW19 — £850,000 • 1 bed • 1 bath • 1949 ft²
Light industrial facility for sale in Mixed-Use Parade For Sale, 81-89 Norwood High Street, West Norwood, West Norwood, SE27 9JS, SE27 — £2,000,000 • 1 bed • 1 bath • 7358 ft²






















































